Book a Viewing

To book a viewing for this property, please call Helmores, on 01363 777 999.

To book a viewing for this property, please call Helmores, on 01363 777 999.

For Sale
£198,000 Guide Price

2 Bedroom Semi Detached House, Kiddicott, Crediton, EX17

Kiddicott, Crediton, EX17


Helmores Primary Brand brand logo

Helmores

Helmores, 111-112 High Street

Description

Set close to the centre of Crediton, yet tucked away, this two bedroom period cottage offers character, practicality and the convenience of town living within easy walking distance of everyday amenities. Shops, cafés, schools and the wider High Street are all nearby, while green spaces and parks are within reach for fresh air and exercise.

Inside, the house combines traditional features with comfortable modern updates. The ground floor is arranged around a generous kitchen and dining space, which works well as the main hub of the home. There is room for a table as well as good storage and worktop space, making it practical for day-to-day use. The adjoining sitting room is a welcoming space, with natural light and retained character details adding warmth.

Upstairs, there are two double bedrooms, both of comfortable proportions and offering flexibility for couples, small families or those needing space to work from home. The bathroom includes both bath and shower facilities and is arranged in a straightforward, functional layout.

The property benefits from gas central heating, with a recently installed boiler providing reassurance for future owners.

While the cottage does not have its own garden, parks and open spaces are within walking distance, and the town centre location means everything needed for daily life is close at hand. Parking is available on nearby streets, and private garages or spaces are sometimes available to rent locally.

Overall, this is a well maintained and characterful home in a central position, offering straightforward, low maintenance living with the advantages of town convenience and period charm.

Agents Notes:

Boundaries, Access & Parking:
Boundary positions, access rights and parking arrangements have been provided by the seller, and any land plans shown are for identification purposes only. We have not seen the title deeds or other legal documents, and buyers should confirm exact details and ownership responsibilities with their conveyancer.

Broadband & Mobile Coverage:
Broadband speeds and mobile signal vary by provider and location, and service availability can change over time. Buyers can check current availability and predicted speeds at www.ofcom.org.uk or via the Ofcom coverage checker.

Virtual Staging:
Some images used in this marketing material may be virtually staged for illustration purposes. Buyers should not assume that furnishings, décor, or condition shown are representative of the property as currently presented.

Buyers' Compliance Fee Notice

Please note that a compliance check fee of £25 (inc. VAT) per person is payable once your offer is accepted. This non-refundable fee covers essential ID verification and anti-money laundering checks, as required by law.

 

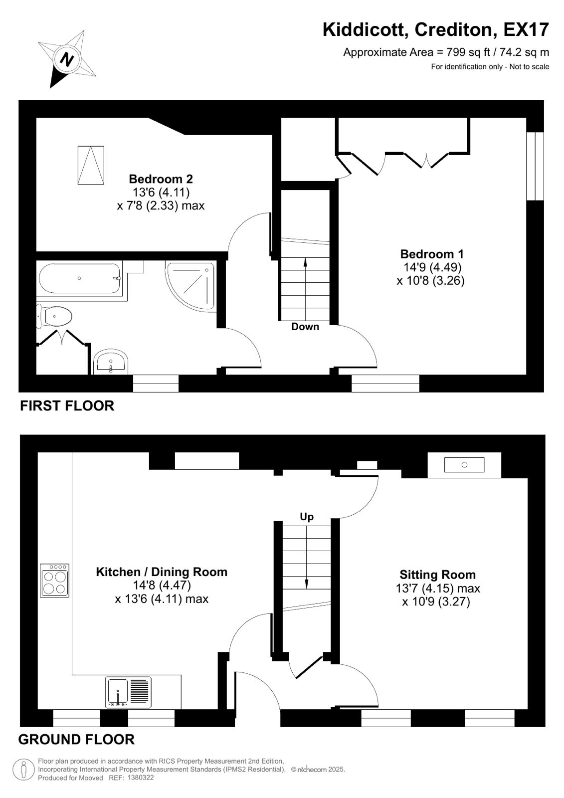
Please see the floorplan for room sizes.

Current Council Tax: Band A – Mid Devon

Approx Age: 1800’s

Construction Notes: Stone/cob under slate roof

Utilities: Mains electric, water, gas, telephone & broadband

Drainage: Mains

Heating: Mains gas

Listed: No

Conservation Area: Yes

Tenure: Freehold

 

CREDITON is a vibrant market town with a bustling high street full of independent shops, eateries, and pubs. In recent years a diverse arts scene has grown to include all manner of mediums, with the performing arts making use of the town’s market square where, in the summer months, a range of activities take place. The market square is also home to the town’s twice-monthly farmer’s market. The town has an equally significant past. It was originally the first Bishopric in Devon and the imposing Parish Church of The Holy Cross now stands where once stood Devon’s first Saxon cathedral (909-1050AD). It is also the birthplace of Saint Boniface, one of the founding fathers of the Christian church in Europe. Easily commutable to Exeter and with two primary schools, a secondary school with sixth form as well as a wide range of necessary amenities, it’s clear why the town is a firm favourite with locals and relocators alike.

 

DIRECTIONS : For sat-nav use EX17 2AY and the What3Words address is ///storming.paying.crescendo but if you want the traditional directions, please read on.

From Crediton High pass Sunflowers Nursery on your right and at the end of the railings, turn right, down the steps and follow the cobbled path, the cottage will be found on your right.     


EPC Rating: D

Key Features

  • Two double bedroom period cottage
  • Central Crediton location, level walk to amenities
  • Spacious kitchen/dining room forming the heart of the home
  • Separate sitting room with retained character features
  • First floor bathroom with bath and shower
  • Gas central heating with recently installed boiler
  • Private garages or spaces sometimes available to rent locally

Property Details

  • Property type: House
  • Property style: Semi Detached
  • Price Per Sq Foot: £239
  • Approx Sq Feet: 829 sqft
  • Property Age Bracket: Victorian (1830 - 1901)
  • Council Tax Band: A
Please note, property and plot sizes displayed are for guidance purposes only and may have been derived from publicly available information over which neither the agent nor Street.co.uk have control.

Floorplans

Parking Spaces

On street

Capacity: N/A

Location

Properties you may like

By Helmores

Disclaimer - Property ID c8db37de-3ec8-4cfa-bd82-c7a715918383. The information displayed about this property comprises a property advertisement. Street.co.uk and Helmores makes no warranty as to the accuracy or completeness of the advertisement or any linked or associated information, and Street.co.uk has no control over the content. This property advertisement does not constitute property particulars. The information is provided and maintained by the advertising agent. Please contact the agent or developer directly with any questions about this listing.