Book a Viewing

To book a viewing for this property, please call Allen Heritage, on 020 8777 3000.

To book a viewing for this property, please call Allen Heritage, on 020 8777 3000.

For Sale
£125,000 Guide Price

Land, Wincanton, Somerset

Wincanton, Somerset


Allen Heritage Primary Brand brand logo

Allen Heritage

Description

The Approval:

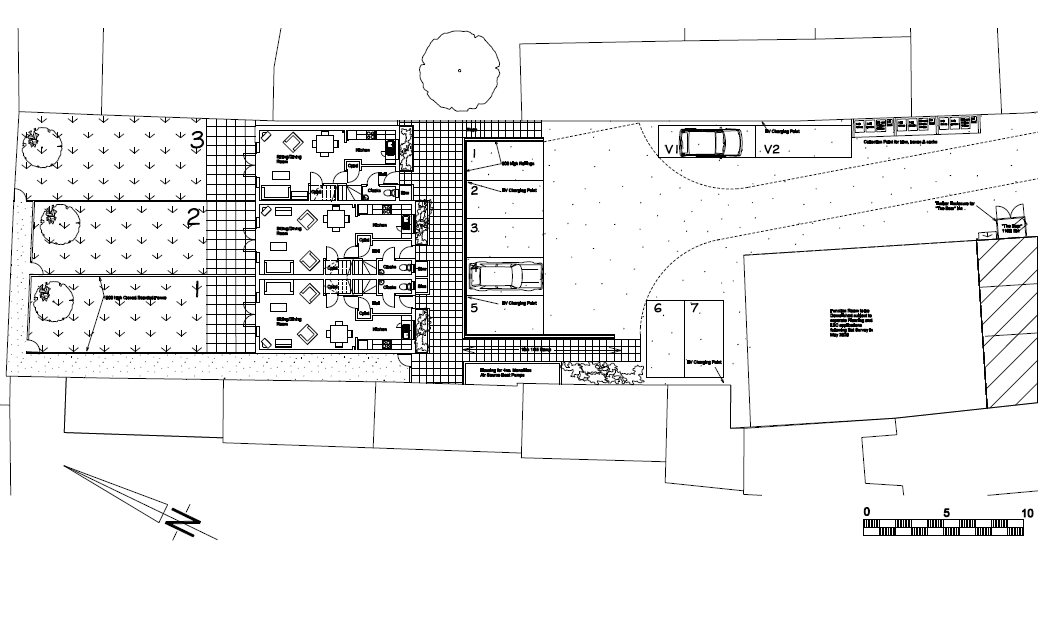
Full planning consent has been granted for the construction of three high-quality new residential dwellings to the rear of The Bear Inn, Wincanton. The approved scheme comprises two 3-bed homes and one 2-bed home, each designed with traditional materials, private gardens and allocated parking. An energy-efficient design including air-source heat pumps, with provision for photovoltaic panels as outlined in the supporting planning documents.

The Current Site:

A private and enclosed courtyard located behind the Grade II listed Bear Inn. A former Carpark, the site consists mainly of hardstanding with tall boundary walls, forming a rare and discreet town-centre development plot within Wincanton’s conservation area.

Site Area:

Approximately 600 SQM

Location:

Located directly off Wincanton Market Place, the site benefits from a prime central position with immediate access to amenities, services and transport links. An attractive, walkable location in the historic heart of the town.

Local Amenities:

Wincanton offers a strong mix of essential services, independent shops, supermarkets, cafés, pubs, health facilities and education options, all within easy reach of the site.

Shops & Services: Wincanton is served by several local and regional bus services providing convenient connections to nearby towns and key transport hubs.

Nearby facilities include Tesco Superstore, Boots, the Post Office, convenience stores, barbers, salons, GP surgeries, pharmacies and well-regarded primary schools, along with a wide range of independent retailers.

Transport & Connections:

Road: Excellent access to the A303, connecting to Yeovil, Sherborne, Shaftesbury, Salisbury, Exeter and wider South West road networks.

Rail: Mainline stations at Templecombe, Gillingham and Bruton provide regular services to London Waterloo, Bristol, Bath, Exeter and regional destinations.

Bus Services: Regular routes link the town with Gillingham, Bruton, Castle Cary, Yeovil, Shaftesbury and Sherborne.

Viewings: Strictly by appointment

Documents Available Upon Request:

Brochure

Approval & Conditions

Design & Access Statement

Archaeological Desk-Based Assessment

Heritage Statement

Link to Planning Documents

GDV

Local Comparable’s

Contact the land team to discuss this site in more detail

Key Features

  • Full Recent Planning Approval
  • Three residential Dwellings
  • Freehold
  • Prime Town Centre Location

Property Details

  • Property type: Land
  • Council Tax Band: TBD
Please note, property and plot sizes displayed are for guidance purposes only and may have been derived from publicly available information over which neither the agent nor Street.co.uk have control.

Location

Located directly off Wincanton Market Place, the site benefits from a prime central position with immediate access to amenities, services and transport links. An attractive, walkable location in the historic heart of the town.

Properties you may like

By Allen Heritage

Disclaimer - Property ID d25c318c-db6e-4178-9f7b-353a96f3b5fc. The information displayed about this property comprises a property advertisement. Street.co.uk and Allen Heritage makes no warranty as to the accuracy or completeness of the advertisement or any linked or associated information, and Street.co.uk has no control over the content. This property advertisement does not constitute property particulars. The information is provided and maintained by the advertising agent. Please contact the agent or developer directly with any questions about this listing.