Book a Viewing

To book a viewing for this property, please call Chartwell Noble - New Homes, on 03330111133.

To book a viewing for this property, please call Chartwell Noble - New Homes, on 03330111133.

For Sale
£425,000 Guide Price

2 Bedroom Semi Detached House, Wigmore, HR6

Wigmore, HR6


Chartwell Noble Primary Brand brand logo

Chartwell Noble - New Homes

Chartwell Noble, The Hayloft, Offerton Barns Business Centre, Offerton Lane

Description

Taylors Barn, Contemporary Rural Living with Barn‑Inspired Character

(One of the images is an AI-generated projection of the finished home plot 5 and 6)

Pear Tree Farm, Wigmore, Herefordshire

Framed by traditional brickwork and heritage‑style cladding, Plots 6, Taylors Barn brings a sense of crafted rural architecture to the Pear Tree Farm development. Though designed with the character of a barn conversion, these are entirely new homes, created with modern specification, thoughtful layouts and a quiet confidence that sits naturally within their countryside setting.

A Welcoming Ground Floor Designed for Everyday Living

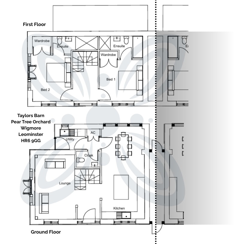
The front door opens into a central entrance hall where the stairway sits at the heart of the home. Its gently turning rise draws light from the landing window above, creating a calm and inviting first impression.

To one side, a generous lounge provides a comfortable and versatile living space. A picture window frames the front outlook, while glazed patio doors with side windows open to the garden—filling the room with natural light and offering an easy connection to the outdoors.

To the other side of the hall, the kitchen and dining space unfolds across the depth of the home. Following the same specification as Anjou House, it features:

  • A Bespoke kitchen with Stone worktops

  • A central island forming the focal point of the space

  • Fitted high-end appliances, including induction hob and twin ovens

  • A dining area with a triple window set overlooking the rear garden

From the dining area, a door leads to a practical secondary hallway with external access, a cloakroom and a dedicated utility/boot room—ideal for rural living.

Two Well‑Proportioned Bedrooms, Each With Its Own Bathroom

The staircase rises and turns to the first floor, where natural light from the landing window sets a calm tone.

Both bedrooms are spacious doubles, each with:

  • Fitted wardrobe space

  • Private ensuite facilities

Bedroom One enjoys a striking design feature, a Juliette balcony with central door and windows to either side, plus an additional front window for dual‑aspect light.

Bedroom Two mirrors the generous proportions of the first and includes an ensuite with both bath and separate shower, creating a flexible, guest‑friendly layout.

Specification & Craftsmanship

The homes follow the same specification narrative as Anjou House, including premium finishes, quality materials and a carefully curated interior palette that balances contemporary comfort with a rural architectural feel.

A Thoughtfully Designed Addition to Pear Tree Farm

Set within this exclusive collection of five bespoke homes, Plots 6, Taylors Barn offers an appealing combination of countryside character, modern build quality and interior refinement. With the architecture echoing traditional farmstead forms, these homes promise a timeless setting for contemporary rural living.

Early interest also provides an opportunity, subject to the build stage, to personalise interior finishes and create a home tailored to individual style.

Find the property using What3Words: https://what3words.com///qualified.surcharge.intro

Anti-Money Laundering Checks (AML)

Regulations require us to conduct identity and AML checks and gather information about every buyer's financial circumstances. These checks are essential in fulfilling our Customer Due Diligence obligations, which must be done before any property can be marked as sold subject to contract. The rules are set by law and enforced by trading standards.

We will start these checks once you have made a provisionally agreeable offer on a property. The cost is £80 (exc. VAT). This fee covers the expense of obtaining relevant data and any necessary manual checks and monitoring. It's paid in advance via our onboarding system, Kotini, and is non-refundable.

Virtual Tour


Key Features

  • Barn-inspired 2 bedroom semi-detached homes within the Pear Tree Farm development in Wigmore
  • Two double bedrooms, each with fitted wardrobe area and its own private ensuite
  • Central turning staircase with landing window, bringing natural light into the heart of the home
  • Crafted by respected local developer Karl Newman, renowned for exceptional build quality and attention to detail
  • Character-rich design with exposed oak beams and oak staircase
  • Secondary ground floor hallway with external access, cloakroom and dedicated utility / boot room – ideal for rural living
  • Open-plan kitchen / dining space with triple window set framing views of the rear garden
  • Ideal for early buyers — viewings now available by appointment only
  • A rare opportunity to own a brand-new country cottage in a sought-after Herefordshire village
  • Generous lounge with picture window to the front and patio doors with flanking windows to the side garden
  • Principal bedroom with Juliette balcony, side windows and dual-aspect glazing for a bright, airy feel

Property Details

  • Property type: House
  • Property style: Semi Detached
  • Price Per Sq Foot: £340
  • Approx Sq Feet: 1,249 sqft
  • Council Tax Band: TBD
Please note, property and plot sizes displayed are for guidance purposes only and may have been derived from publicly available information over which neither the agent nor Street.co.uk have control.

Floorplans

Parking Spaces

Driveway

Capacity: 2

Location

The Location – Wigmore, Herefordshire Set within the historic Pear Tree Farm development, Plot 6 enjoys a peaceful rural setting with rolling countryside views, woodland walks, and a welcoming village community. Despite its idyllic location, amenities and transport links are within easy reach.

Properties you may like

By Chartwell Noble - New Homes

Disclaimer - Property ID e2b0819d-e9b5-446d-9323-32403e7a94c5. The information displayed about this property comprises a property advertisement. Street.co.uk and Chartwell Noble - New Homes makes no warranty as to the accuracy or completeness of the advertisement or any linked or associated information, and Street.co.uk has no control over the content. This property advertisement does not constitute property particulars. The information is provided and maintained by the advertising agent. Please contact the agent or developer directly with any questions about this listing.