Book a Viewing

To book a viewing for this property, please call Nested Highland, on 01463389144.

To book a viewing for this property, please call Nested Highland, on 01463389144.

For Sale
£90,000 Offers Over

Property, Plot at Corry Bridge, Braes, Ullapool, IV26 2SZ

Plot at Corry Bridge, Braes, Ullapool, IV26 2SZ


Nested Highland Primary Brand brand logo

Nested Highland

Fora, 9 Dallington Street, London

Description

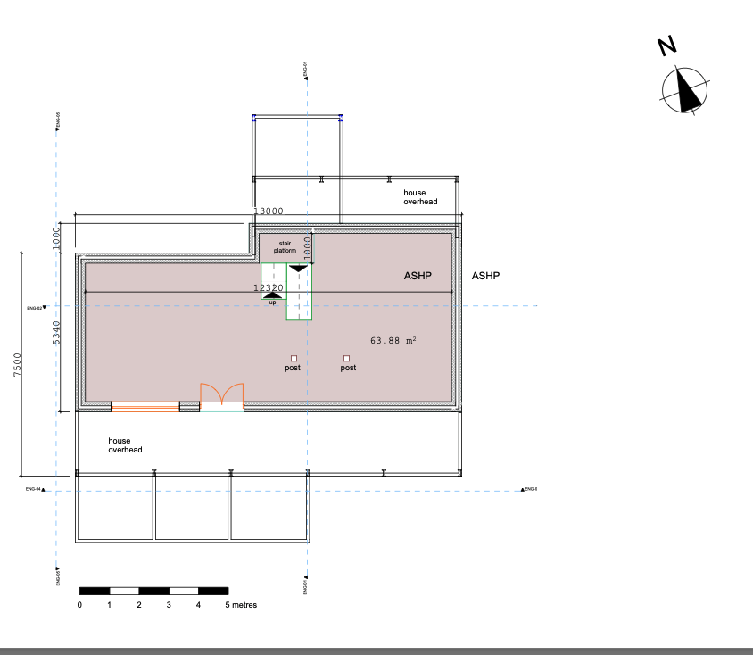
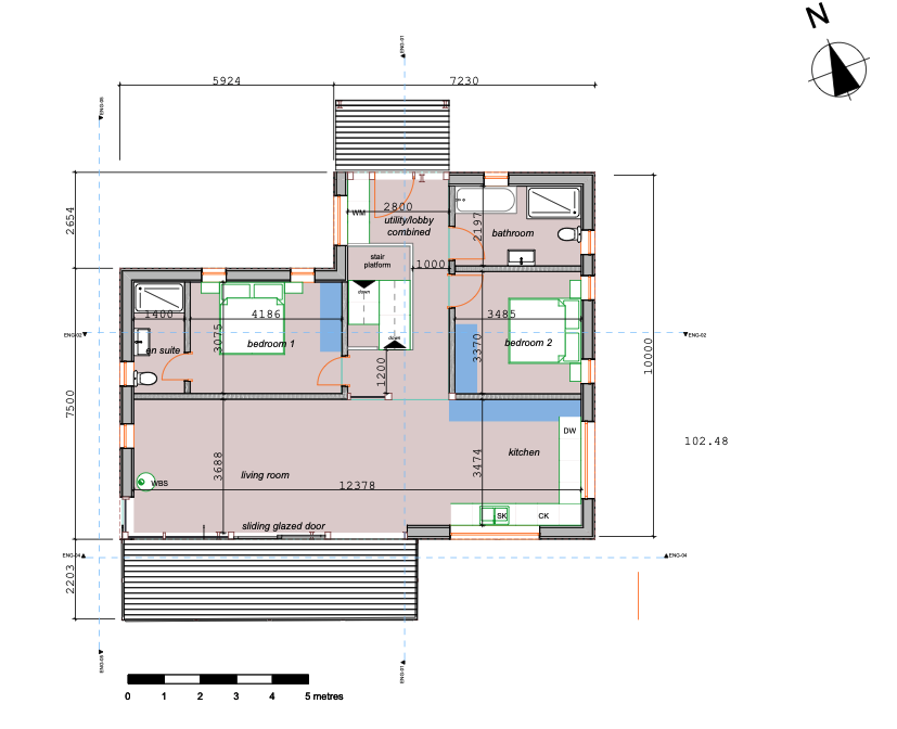
Presenting a rare opportunity to acquire a well-positioned plot within the sought-after Braes of Ullapool, this unique offering is ideally suited for those looking to create a bespoke home in one of the Highlands’ most picturesque settings. With full planning permission granted (Reference 23/01848/FUL) for a thoughtfully designed, two-bedroom single storey house, the plot provides the perfect canvas for a contemporary residence tailored to your preferences. The elevated position ensures captivating views over Loch Broom, enhancing the sense of tranquillity and connection to the natural surroundings. Situated in a popular residential area, this plot benefits from the established community spirit of Ullapool, a vibrant west coast village renowned for its charming atmosphere and excellent local amenities. Ullapool is a key destination on the iconic North Coast 500 route, making it a popular choice for both residents and visitors, while the ferry terminal offers convenient links to Stornoway and the Outer Hebrides, further increasing the appeal of this location. The village itself is well-served by a range of shops, cafes, restaurants, and essential services, as well as respected primary and secondary schooling. With a rich cultural scene, including regular music events and art exhibitions, Ullapool offers a lively yet relaxed lifestyle for all ages. The approved plans for the single storey home have been carefully considered to maximise natural light and take full advantage of the outstanding views, with a practical layout that will suit a variety of buyers, whether as a permanent residence, a holiday retreat, or an investment opportunity. Rarely does a plot with such potential, in such a desirable location, come to the open market at this location. For those seeking to build a home that truly reflects their aspirations, in a setting that combines natural beauty with convenience, this plot represents an exceptional proposition. Early enquiry is highly recommended to avoid disappointment and to take the first step towards realising your vision in the heart of the Highlands. Full details of the planning permission and proposed plans are available on request (Planning Reference 23/01848/FUL), and our team will be pleased to provide further information or arrange a site visit at your convenience. Plot area - 0.59 acres.

Key Features

  • Rare opportunity to purchase plot in popular residential location in Braes of Ullapool
  • Planning Permission Reference 23/01848/FUL granted for 2 bed single storey house
  • Elevated location with views over Loch Broom
  • Popular west coast village on NC500 and ferry link to Stornoway
  • Plot Area 0.59 acres

Property Details

  • Property type: Not Specified
  • Council Tax Band: TBD
Please note, property and plot sizes displayed are for guidance purposes only and may have been derived from publicly available information over which neither the agent nor Street.co.uk have control.

Location

This building plot is located in Braes, in the popular west coast village of Ullapool. Local amenities include a great variety of shops, supermarket, hotels, restaurants as well as the main ferry terminal for sailings to Stornoway and The Isle of Lewis. The primary school and High School are located in the village. The excellent 9-hole village golf course is very popular with visitors and locals alike. The Scottish Highlands provide fabulous opportunities for outdoor activities with the ruggedness of the North-West Highlands, often referred to as the last great wilderness in Europe, right on your doorstep. Inverness (55 miles away) provides a wide range of retail parks along with excellent cultural, educational, entertainment and medical facilities. Inverness is also well connected by road, rail and air to other UK & overseas destinations.

Properties you may like

By Nested Highland

Disclaimer - Property ID f470bc3a-cbdd-4924-a34f-adc2b90ac9c7. The information displayed about this property comprises a property advertisement. Street.co.uk and Nested Highland makes no warranty as to the accuracy or completeness of the advertisement or any linked or associated information, and Street.co.uk has no control over the content. This property advertisement does not constitute property particulars. The information is provided and maintained by the advertising agent. Please contact the agent or developer directly with any questions about this listing.