Book a Viewing

Click here to pick an available date and time to view this property

Book a Viewing
To Let
£1,500 pcm

3 Bedroom Terraced Town House, Charles Marler Way, Blofield, Norwich

Charles Marler Way, Blofield, Norwich


Starkings & Watson Primary Brand brand logo

Starkings & Watson Hybrid Estate Agents

Roxburgh House, Rosebery Business Park Mentmore Way

Description

IN SUMMARY
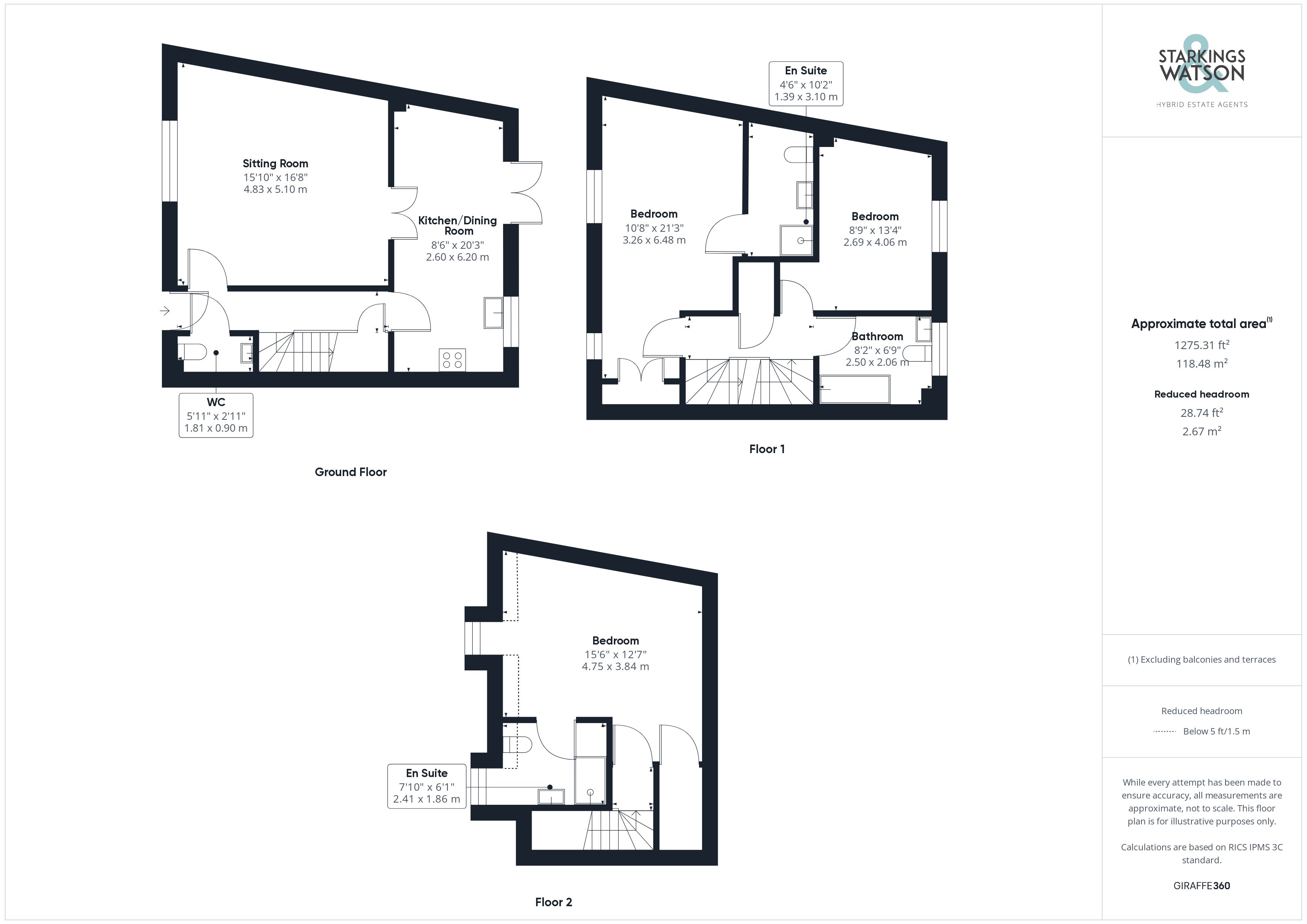
Built in 2020 by HOPKINS HOMES, this mid-terrace TOWNHOUSE enjoys SOUTH FACING GARDENS, tandem driveway and a GARAGE. With over 1275 Sq. ft (stms) of accommodation, SPACIOUS ROOMS can be found across three floors, finished with double glazing and gas fired CENTRAL HEATING. The HALL ENTRANCE leads to a W.C and useful under-stairs storage, with doors to the 16' SITTING ROOM and 20' KITCHEN/DINING ROOM. The first floor offers TWO DOUBLE BEDROOMS including the second bedroom with BUILT-IN WARDROBE and EN SUITE, along with the adjacent family bathroom. Upstairs, on the TOP FLOOR is the main bedroom with further storage and an EN SUITE SHOWER ROOM. The REAR GARDEN is laid to LAWN with enclosed boundaries and gated access to the garage.

SETTING THE SCENE
The low maintenance lawned front garden is bordered with a range of mature planting and a hard standing footpath leading to the main entrance door. The garage and tandem driveway sits to the left hand side of the terrace row, with gated access also leading to the rear garden.

THE GRAND TOUR
The hall entrance is finished with wood effect flooring for ease of maintenance, with stairs rising to the first floor landing and a useful storage cupboard sitting below. As you enter the property to your right hand side, a ground floor W.C can be found with a two piece suite and tiled splash backs. The main sitting room is a fantastic size with fitted carpet underfoot and double doors which open up to the main kitchen/dining room. The kitchen area includes a range of wall and base level units with an inset gas hob, built-in high level electric double oven and extractor fan above. Tiled flooring runs underfoot for ease of maintenance with space for white goods and a cupboard housing the wall mounted gas fired central heating boiler. There is ample space for a dining table, whilst French doors lead to the rear garden.

Heading up to the first floor landing, with doors leading to two bedrooms which include the second bedroom complete with built-in double wardrobes, and en suite shower room which has a modern white three piece suite, tiled splash-backs and feature décor. The third bedroom sits to the rear of the property with a window to rear. The family bathroom completes this floor with a spacious room, half tiled walls and feature mirror.

The top floor is dedicated to the main bedroom with fitted carpet underfoot, velux window to rear and window to front, walk in-wardrobe for storage and a further en suite which includes a double shower cubicle, tiled splash backs and tile effect flooring underfoot.

FIND US
Postcode : NR13 4TN
What3Words : ///achieving.validated.napkins

VIRTUAL TOUR
View our virtual tour for a full 360 degree of the interior of the property.


Key Features

  • Mid-Terrace Townhouse Offering Over 1275 Sq.Ft Of Accommodation
  • Hall Entrance with W.C
  • 16' Sitting Room
  • 20' Kitchen/Dining Room
  • Three Bedrooms Over Two Floors
  • Family Bathroom & Two En Suites
  • South Facing Lawned Gardens
  • Tandem Driveway & Garage

Property Details

  • Property type: Town House
  • Property style: Terraced
  • Approx Sq Feet: 1,275 sqft
  • Council Tax Band: D
Please note, property and plot sizes displayed are for guidance purposes only and may have been derived from publicly available information over which neither the agent nor Street.co.uk have control.

Floorplans

Outside Spaces

Garden

THE GREAT OUTDOORS The rear garden enjoys a south facing aspect and has been pleasantly landscaped to include a central lawn, a range of planting and enclosed timber fence boundaries with a rear gated access. The garage offers an up and over door to front.

Parking Spaces

Driveway

Capacity: 2

Garage

Capacity: 1

Location

The Broadland Village of Blofield is situated East of the Cathedral City of Norwich. The Village provides good transport links via both the Brundall and Lingwood railway stations along with regular buses travelling to both Norwich and Great Yarmouth. The Village itself offers a wide range of amenities including a village school boasting an Outstanding Ofsted rating, local shops, garden centre and a public house. Blofield is conveniently located close to the Norfolk Broads and its extensive range of Leisure and Boating activities.

Properties you may like

By Starkings & Watson Hybrid Estate Agents

  • £1,500 pcm

    Charles Marler Way, Blofield, Norwich

    • 3 Beds
    • 3 Bath
    View Property
  • £1,125 pcm

    High House Avenue, Wymondham

    • 3 Beds
    • 1 Bath
    View Property
  • £1,275 pcm

    High Green, Great Moulton, Norwich

    • 3 Beds
    • 2 Bath
    View Property
  • £1,200 pcm

    Geoffrey Road, Norwich

    • 2 Beds
    • 1 Bath
    View Property
  • £750 pcm

    The Common, Mellis, Eye

    • 1 Beds
    • 1 Bath
    View Property
  • £900 pcm

    Windmill Court, Norwich

    • 2 Beds
    • 1 Bath
    View Property
  • £1,500 pcm

    Dove Lane, Eye

    • 4 Beds
    • 1 Bath
    View Property
  • £1,275 pcm

    High Green, Great Moulton, Norwich

    • 3 Beds
    • 2 Bath
    View Property
  • £1,000 pcm

    St. Margarets Way, Fleggburgh, Great Yarmouth

    • 3 Beds
    • 1 Bath
    View Property
Disclaimer - Property ID 15f91dd2-c03a-4511-93d6-eacd99064589. The information displayed about this property comprises a property advertisement. Street.co.uk and Starkings & Watson Hybrid Estate Agents makes no warranty as to the accuracy or completeness of the advertisement or any linked or associated information, and Street.co.uk has no control over the content. This property advertisement does not constitute property particulars. The information is provided and maintained by the advertising agent. Please contact the agent or developer directly with any questions about this listing.