4 Bedroom Detached House, Gaulby Lane, Stoughton, Leicester
Gaulby Lane, Stoughton, Leicester

Knightsbridge Estate Agents - Oadby
Knightsbridge Estate Agents, 49B The Parade, Oadby
Description
A beautifully presented and privately positioned detached family home, offering the ideal blend of space and comfort. This fabulous property could be just what you’ve been searching for, featuring a welcoming open entrance hall and galleried landing that creates a wonderful sense of flow throughout the accommodation.
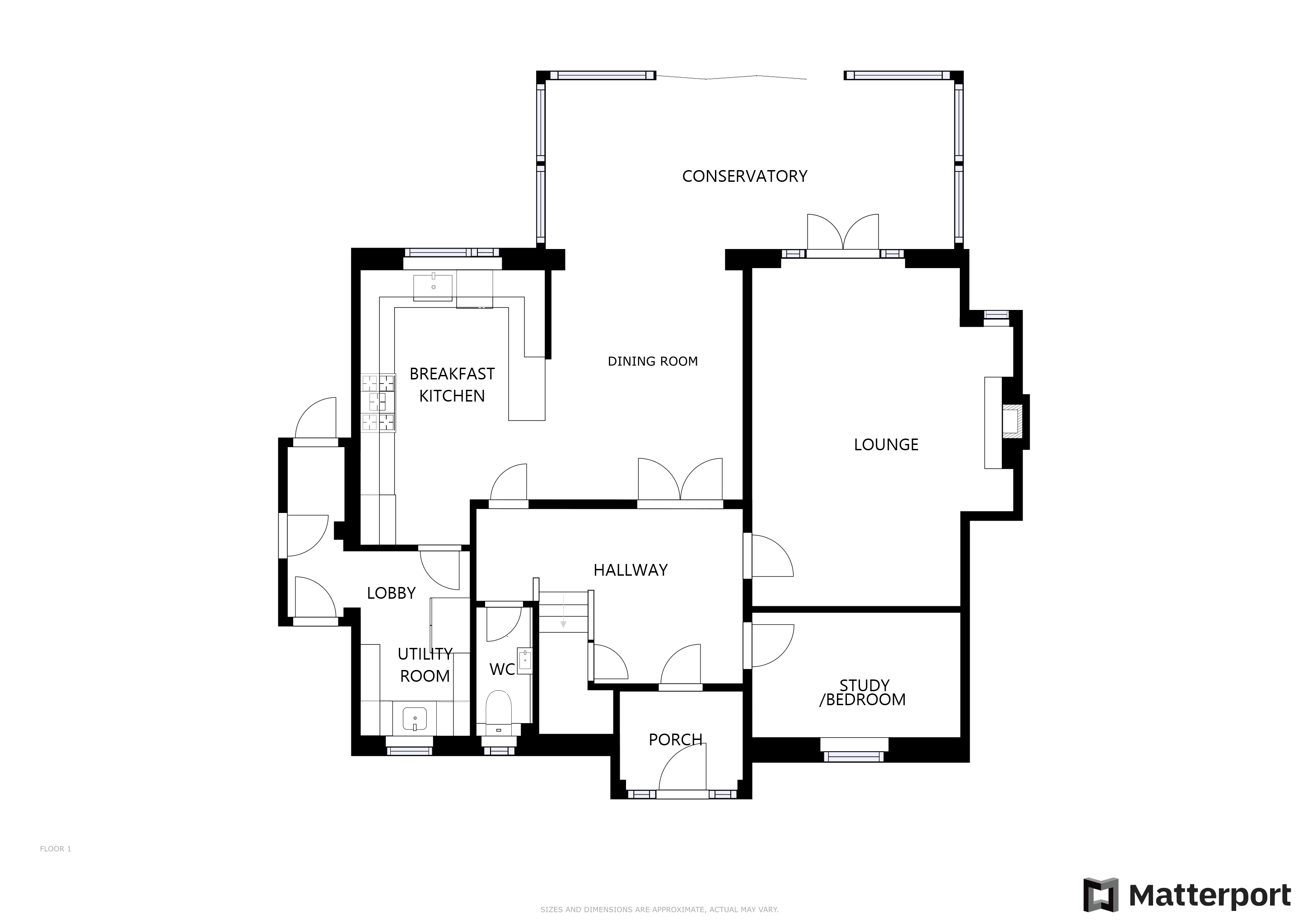
The ground floor has a study/fourth bedroom, spacious lounge, dining room with open aspect to the conservatory and breakfast kitchen alongside a utility room and ground floor WC. On the first floor, there are three bedrooms, principal with a dressing area and en-suite bathroom and a stylish family bathroom.
Parking is available via a driveway leading to a double garage. Low maintenance gardens present themself to the front and rear. Call our office now to arrange your viewing.
The property is situated within close proximity to day to day amenities in nearby Oadby Town Centre with further amenities along the fashionable Queens Road in nearby Clarendon Park. Leicestershire’s rolling countryside also surrounds the property.
EPC Rating: D
Virtual Tour
https://my.matterport.com/show/?m=DqPb8g9TKQ4Other Virtual Tours:
Key Features
- Detached Home Offered with No Upward Chain
- Lounge, Dining Room
- Study/Fourth Bedroom, Conservatory
- Breakfast Kitchen
- Ground Floor WC
- Three Bedrooms
- Walk-In Wardrobe & En-Suite to Principal Bedroom
- Family Bathroom
- Off Road Parking, Double Garage
- Lawn Rear Garden
Property Details
- Property type: House
- Price Per Sq Foot: £312
- Approx Sq Feet: 2,002 sqft
- Plot Sq Feet: 8,805 sqft
- Property Age Bracket: 1910 - 1940
- Council Tax Band: F
- Property Ipack: Key Facts for Buyers
Rooms
Entrance Porch
With double glazed windows and door to the front elevation, radiator.
Entrance Hall
With stairs to first floor, under stairs storage cupboard, carpet floor, radiator.
View Entrance Hall PhotosStudy/Fourth Bedroom
3.57m x 2.06m
With double glazed window to the front elevation, carpet floor, radiator.
View Study/Fourth Bedroom PhotosLounge
5.63m x 4.47m
Measurement narrowing to 3.57 m. With double glazed windows and French doors to the rear elevation, carpet floor, gas fire with surround and hearth, two radiators.
View Lounge PhotosGround Floor WC
2.17m x 0.97m
With double glazed window to the front elevation, tiled floor, part tiled walls, low-level WC, wash hand basin with storage below, radiator.
View Ground Floor WC PhotosDining Room
3.84m x 3.27m
With tiled floor, radiator, open aspect leading to kitchen and conservatory.
View Dining Room PhotosConservatory
6.94m x 2.86m
A double glazed conservatory with bi-folding doors to the rear garden, tiled floor.
View Conservatory PhotosBreakfast Kitchen
4.54m x 3.11m
With double glazed window to the rear elevation, wall and base units with work surface over, part tiled walls, tiled floor, sink and drainer unit, integrated dishwasher, integrated fridge freezer, gas cooker point, extractor hood, radiator.
View Breakfast Kitchen PhotosUtility Room
3.14m x 1.88m
With double glazed window to the front elevation, wall and base units with work surface over, part tiled walls, tiled floor, sink and drainer unit, plumbing for washing machine, space for tumble dryer, radiator.
View Utility Room PhotosRear Lobby
With double glazed doors to the front and rear elevations, garage access.
First Floor Landing
With double glazed window to the front elevation, carpet floor, built-in storage cupboard, radiator.
View First Floor Landing PhotosBedroom One
4.27m x 4.09m
With double glazed window to the rear elevation, fitted desk, fitted bedside cabinets, carpet floor, radiator.
View Bedroom One PhotosWalk-In Wardrobe
3.26m x 2.19m
Measurement into wardrobes. With double glazed window to the rear elevation, fitted wardrobes, fitted desk, carpet floor, radiator.
View Walk-In Wardrobe PhotosEn-Suite
2.58m x 1.77m
With double glazed window to the side elevation, part tiled walls, carpet floor, wash hand basin, low-level WC, bath, radiator.
View En-Suite PhotosBedroom Two
4.17m x 3.59m
Measurement into wardrobes. With double glazed window to the rear elevation, fitted wardrobes, carpet floor, radiator.
View Bedroom Two PhotosBedroom Three
3.59m x 3.58m
Measurement into wardrobes. With double glazed window to the front elevation, carpet floor, fitted wardrobes, radiator.
View Bedroom Three PhotosFamily Bathroom
2.45m x 2.98m
With double glazed window to the front elevation, tiled floor, tiled walls, bath with shower over, wash hand basin with storage below, low-level WC, chrome ladder towel rail.
View Family Bathroom PhotosFloorplans
Outside Spaces
Front Garden
With lawn, flowerbeds and shrubs, paved pathway.
Parking Spaces
Driveway
Capacity: 2
Garage
Capacity: 2
5.66 m x 5.13 m. With up and over door to the front elevation, double glazed window to the rear elevation, door to rear garden, wall and base units, boiler. Please note that parking within the garage is subject to vehicle size. Prospective purchasers should ensure the dimensions are suitable for their vehicle before relying on it for parking purposes.
Location
Properties you may like
By Knightsbridge Estate Agents - Oadby