Book a Viewing

Click here to pick an available date and time to view this property

Book a Viewing
For Sale
£400,000

5 Bedroom Semi Detached House, Park Crescent, Oadby, Leicester

Park Crescent, Oadby, Leicester


Knightsbridge Estate Agents Primary Brand brand logo

Knightsbridge Estate Agents - Oadby

Knightsbridge Estate Agents, 49B The Parade, Oadby

Description

Situated in a quiet and highly desirable residential pocket of Oadby, this is a well presented semi-detached residence that has been thoughtfully extended to provide substantial living space. Whether you are a growing family or looking for a home that supports multi-generational living, this property offers a flexible solution.

The ground floor opens with a bright hallway leading to an impressive 8m through-lounge, complete with a gas fire and access to a rear conservatory. The heart of the home is the kitchen/diner, featuring tiled flooring, space for appliances and built in oven/hob. A versatile ground-floor bedroom with built-in wardrobes and an adjacent modern shower room provides an ideal setup for guests or elderly relatives.

Upstairs, the home offers four well-proportioned bedrooms. The family bathroom is well-appointed with a bath and shower over. The exterior is designed for low maintenance, featuring a two-car driveway and a paved rear garden with a pergola, shed and a rear gateway leading to a secure private park exclusive for local residents use only.


EPC Rating: D

Other Virtual Tours:


Key Features

  • No Upward Chain
  • Semi-Detached Family Home
  • Four Bedrooms plus Ground Floor Bedroom
  • Upstairs Family Bathroom & Ground Floor Shower Room
  • Large Through Lounge Diner
  • Conservatory
  • Off-Road Parking & Low Maintenance Rear Garden
  • Access to a Private Park

Property Details

  • Property type: House
  • Property style: Semi Detached
  • Price Per Sq Foot: £264
  • Approx Sq Feet: 1,518 sqft
  • Plot Sq Feet: 2,831 sqft
  • Council Tax Band: TBD
  • Property Ipack: Material Information
Please note, property and plot sizes displayed are for guidance purposes only and may have been derived from publicly available information over which neither the agent nor Street.co.uk have control.

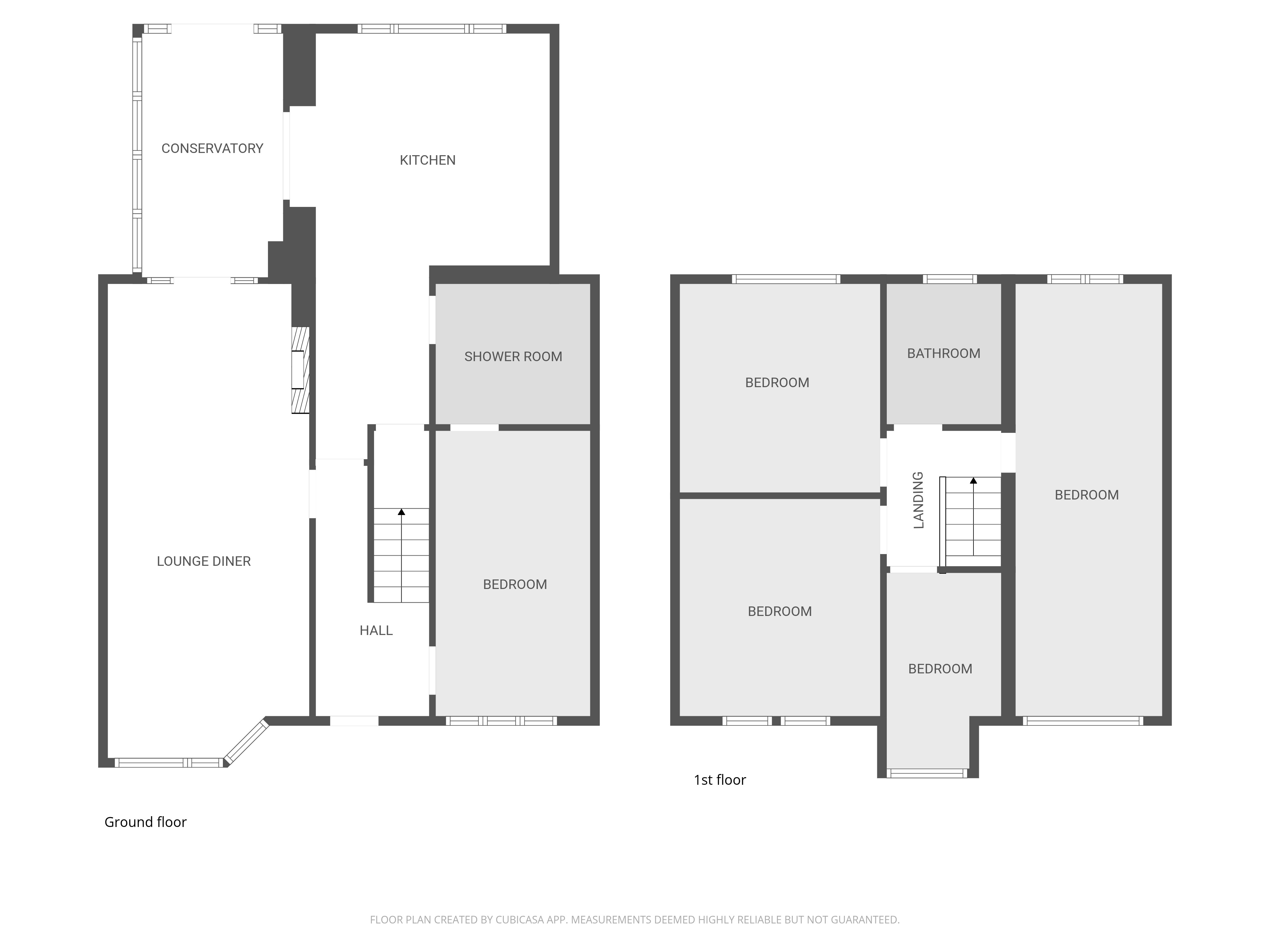
Rooms

Front Porch

1.00m x 2.30m

Tiled floors, radiator

Hallway

4.60m x 1.70m

With stairs to the first floor, radiator, carpeted floor covering, door to the porch and access to downstairs living accommodation.

Lounge Diner

8.00m x 3.30m

This spacious through lounge diner has access to the conservatory via French doors. With a window to the front, carpet, gas fire with surround and two radiators.

Conservatory

4.30m x 2.50m

This double glazed conservatory is a versatile room and has access to the rear garden via French doors. With a radiator, tiled flooring and French doors leading to the lounge diner.

Kitchen

6.90m x 4.30m

A practical kitchen with a mix of wall and base units, sink and drainer unit with mixer tap, part tiled walls, space for appliances such as fridge freezer, washing machine, dishwasher. Built in oven and hob with extractor fan over and tiled splashbacks. Ceiling spotlights, tiled flooring radiator, boiler and a double glazed window overlooking the rear garden

Downstairs Shower Room

2.40m x 2.30m

A useful addition to the ground floor accommodation, includes WC, wash hand basin with tiled splashbacks, wall mounted mirror, corner shower unit, part tiled walls, tiled floor, extractor fan and heated towel rail.

Ground Floor Fifth Bedroom

5.20m x 2.50m

Benefitting from built-in wardrobes and under stairs storage, radiator, carpet floor covering and a double glazed window.

First Floor Landing

Providing access to the first floor accommodation and has access to the loft.

Bedroom One

7.40m x 3.00m

With dual aspect double glazed windows, laminate flooring and two radiators.

Bedroom Two

4.10m x 3.20m

With laminate flooring, double glazed window to the front elevation and a radiator.

Bedroom Three

3.40m x 3.30m

With a double glazed window overlooking the rear, laminate flooring and a radiator.

Bedroom Four

3.50m x 1.80m

With laminate flooring, double glazed window and radiator. Please note due to box over the stair-well the measurements may be affected.

Bathroom

2.40m x 2.00m

P-shaped bath with mixer tap and shower attachment, electric shower over the bath, wash hand basin with mixer tap, low-level WC, tiled floor, wall mounted mirror, tiled walls, tiled floor, two double glazed obscured windows and a ladder towel rail.

Outside Spaces

Front Garden

Low maintenance, paved with a small stone border and plants

Rear Garden

Low maintenance slabbed patio rear garden with a pergola, shed, fully fenced surround and gated rear and side access.

Communal Garden

Community-owned Park: Access to secure private park land at the back. It is not part of the property, but owners can pay a voluntary contribution currently £10/year for the upkeep.

Parking Spaces

Off street

Capacity: 2

Low maintenance paved driveway providing parking for approximately two cars.

Location

Positioned closed to local schools including Brocks Hill Primary and Gartree High, the home is also perfectly placed for the amenities of Oadby Parade.

Properties you may like

By Knightsbridge Estate Agents - Oadby

Disclaimer - Property ID 69e3f1a7-5c01-4e61-bd75-72e033c7f1e3. The information displayed about this property comprises a property advertisement. Street.co.uk and Knightsbridge Estate Agents - Oadby makes no warranty as to the accuracy or completeness of the advertisement or any linked or associated information, and Street.co.uk has no control over the content. This property advertisement does not constitute property particulars. The information is provided and maintained by the advertising agent. Please contact the agent or developer directly with any questions about this listing.