Book a Viewing

To book a viewing for this property, please call Allen Heritage, on 020 8777 3000.

To book a viewing for this property, please call Allen Heritage, on 020 8777 3000.

For Sale
£300,000 Guide Price

Land, Printers Elbow II, Union Street, Torquay

Printers Elbow II, Union Street, Torquay


Allen Heritage Primary Brand brand logo

Allen Heritage

Description

The Approval:

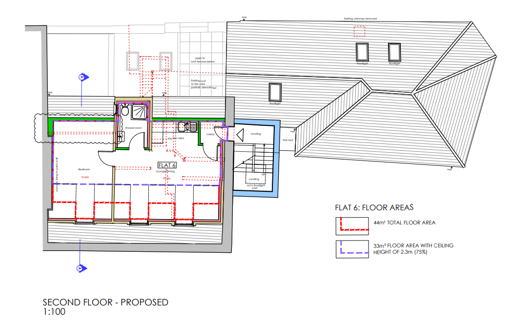
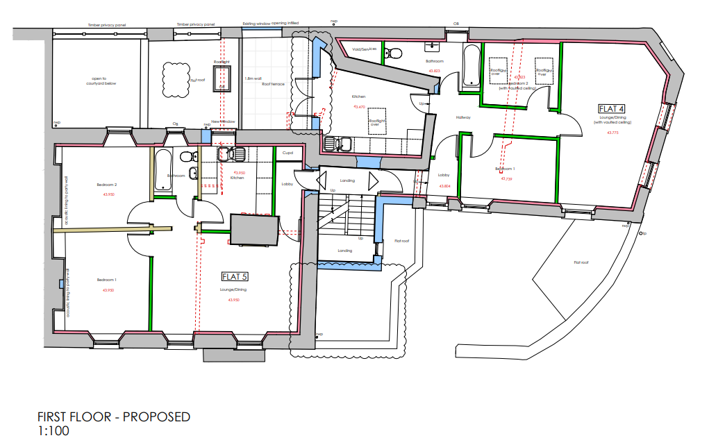
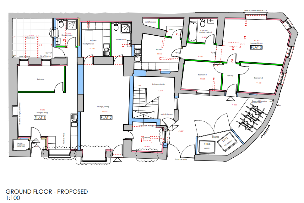
The approval provides change of use to convert the existing vacant building into a residential scheme comprising six self-contained apartments with communal space, including bins and bike storage.

3 x two bedroom apartments (one with terrace)

3 x one bedroom apartments (one with terrace)

This is a car free scheme due to its central location. On-street car parking available, plus a public car park (63 spaces)

Tenure. Freehold

The Current Site:

A prominent former three storey public house, well located within Torquay town centre.

Site Area:

The existing building has a total floor area of 422m² set on a site area of 281m².

Vacant

The site has largely been cleared ready for development

Previously a pub with ancillary flats on the upper floors, the ground floor has been cleared of pub equipment.

The proposed use of all properties will be residential (Class C3).

The Location:

The site is located in in a very accessible location, less than 300m from Torquay’s town centre.

Coastal Setting:

Located approx. 10 minutes within walking distance of Torquay seafront, harbour, marina and beaches.

Local Amenities:

Shopping:

Torquay town centre retail within walking distance.

Eating & Drinking:

Wide range of cafés, restaurants and leisure uses nearby.

Transport Links:

Train Station:

Torquay railway station provides regional and national connections (London in 3 hours, 6 minutes)

Bus & Road:

Good access to local bus routes and the A380 linking Torquay with Exeter and the M5.

Viewings:

Strictly by appointment only

Additional Documents Available Upon Request:

Brochure

Approval & Conditions

GDV

Local Comparables

Design & Access Statement

Planning Statement

Heritage Statement

For Planning documents and further information contact the land team


EPC Rating: C

Key Features

  • Approved scheme of six self-contained apartments
  • Vacant
  • Former public house within Torquay town centre
  • Town-centre location
  • Less than a mile to Torquay seafront, harbour, marina & beaches

Property Details

  • Property type: Land
  • Council Tax Band: TBD
Please note, property and plot sizes displayed are for guidance purposes only and may have been derived from publicly available information over which neither the agent nor Street.co.uk have control.

Location

The site forms part of Torquay’s established town centre, within close proximity to shops, cafés, amenities and transport links.

Properties you may like

By Allen Heritage

Disclaimer - Property ID 6ca95f7e-1dd1-43b3-a5df-b7733f536cd9. The information displayed about this property comprises a property advertisement. Street.co.uk and Allen Heritage makes no warranty as to the accuracy or completeness of the advertisement or any linked or associated information, and Street.co.uk has no control over the content. This property advertisement does not constitute property particulars. The information is provided and maintained by the advertising agent. Please contact the agent or developer directly with any questions about this listing.