Book a Viewing

To book a viewing for this property, please call Stuart Rushton & Company, on 01565 757000.

To book a viewing for this property, please call Stuart Rushton & Company, on 01565 757000.

For Sale
£6,500,000 Guide Price

6 Bedroom Detached House, Newton Hall Lane, Mobberley, WA16

Newton Hall Lane, Mobberley, WA16


Stuart Rushton and Company Primary Brand brand logo

Stuart Rushton & Company

Stuart Rushton & Co, 35 King Street

Description

A handsome, historic Grade II Listed country house, beautifully refurbished throughout with exceptional quality, standing in a fabulous position within the village Conservation Area in immaculate gardens and grounds, including a grass tennis court, outdoor swimming pool, superb equestrian facilities, with manège and stables, in all about 6.5 acres.

This wonderful period house dates in part to at least the 16th Century, and stands within stunning gardens and grounds including a grass tennis court and a lovely outdoor swimming pool adjacent to the main terrace. The current owners acquired the house around 10 years ago, and although significant work had already been undertaken, it has been substantially extended and refurbished during their ownership, including a stunning and comprehensive internal refit, and today is beautifully presented throughout with the most wonderful high quality traditional interior and exceptional fittings. It sits in a lovely rural position on the edge of the village with pretty, surrounding views, and the house is notable for its historic links, once the family home of the famous climber Mallory.

The refurbishment programme included significant extensions and remodelling alterations to form the house as it stands today, and during the refit a huge amount of bespoke cabinetry has been installed by the superb Hetherington Newman of Knutsford including the wonderful kitchen and sitting room extension, and many of the new windows are by Crittall. Bathroom fittings are of the very highest quality by with immaculate tiling and a great deal of the fittings are by Drummonds. The newly installed specification is extremely impressive throughout the house.

The house has two sets of gates, one central and leading to a huge gravel forecourt and turning area suitable for an extensive number of guests. The gardens immediately surrounding the house are beautifully manicured with topiaried yew hedging, flowers and shrubs and a number of ancient trees. A York stone terrace wraps around the house to the side and rear and runs flush to the interior of the new extension, beyond which is a large pool deck with summer house and an outdoor heated swimming pool run by an air source heat pump and electric cover.

Behind the pool is a grass tennis court used regularly by the owners, and a pathway leads through the gardens to the residue of the land, split in to three good sized paddocks and including an excellent small equestrian facility with concrete forecourt, a range of brand new timber stable buildings and a large fully fenced manege.






EPC Rating: D

Key Features

  • An exceptional Grade II listed country house within immaculate gardens and grounds of 6.5 acres
  • Lovely semi rural location between Knutsford, Hale and Wilmslow
  • Beautifully refurbished throughout to an exceptional quality
  • Immaculate gardens, paddocks, grass tennis court, outdoor swimming pool
  • Superb range of modern timber stables and all weather arena

Property Details

  • Property type: House
  • Property style: Detached
  • Price Per Sq Foot: £885
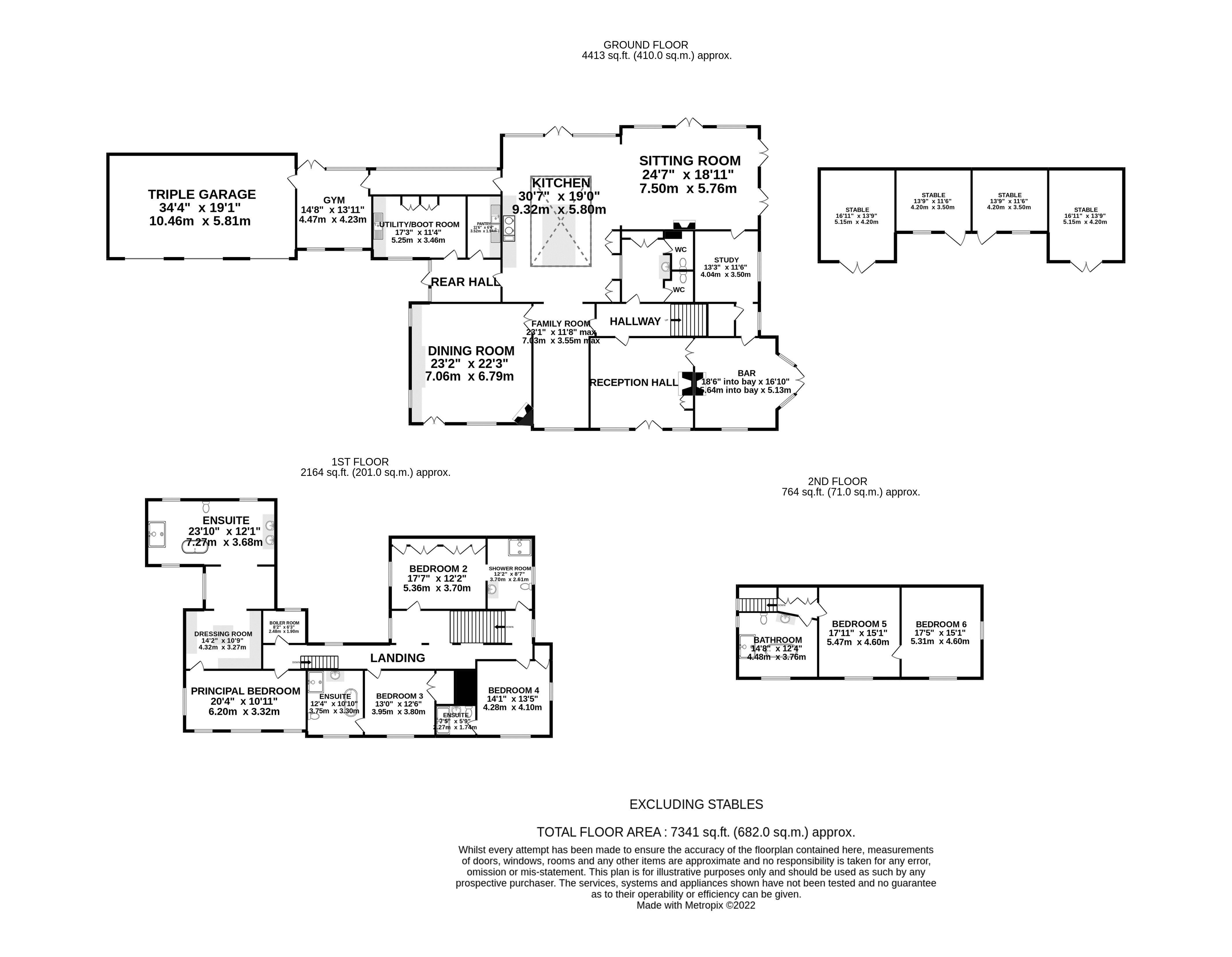
  • Approx Sq Feet: 7,341 sqft
  • Property Age Bracket: Pre-Georgian (pre 1710)
  • Council Tax Band: H
  • Property Ipack: Title plan
Please note, property and plot sizes displayed are for guidance purposes only and may have been derived from publicly available information over which neither the agent nor Street.co.uk have control.

Floorplans

Location

Properties you may like

By Stuart Rushton & Company

Disclaimer - Property ID 9bb9d2aa-fbd4-40b7-a969-de48b15579b9. The information displayed about this property comprises a property advertisement. Street.co.uk and Stuart Rushton & Company makes no warranty as to the accuracy or completeness of the advertisement or any linked or associated information, and Street.co.uk has no control over the content. This property advertisement does not constitute property particulars. The information is provided and maintained by the advertising agent. Please contact the agent or developer directly with any questions about this listing.