Book a Viewing

Click here to pick an available date and time to view this property

Book a Viewing
For Sale
£110,000 Guide Price

Other, North Road, Darlington, DL1

North Road, Darlington, DL1


Sillars Primary Brand brand logo

Sillars | Investments, Lettings & Management

Blackwell Business Centre, 1 Blackwell Lane, Darlington

Description

A superb freehold investment opportunity located on a busy main road in Darlington, close to Morrisons, local amenities, and excellent transport links. This well-presented mixed-use property offers a ground floor commercial unit with vacant possession and a spacious two-bedroom flat with balcony above.

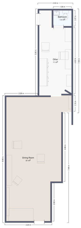
The ground floor commercial premises extends to approximately 43m² (463 sq. ft) and benefits from strong street visibility and consistent foot traffic, making it ideal for a variety of retail or service-based businesses.

The first-floor flat measures approximately 50m² (538 sq. ft) and features two well-proportioned bedrooms, a modern kitchen, and a private balcony offering outdoor space. The flat is currently tenanted, with the tenancy ending in December, allowing flexibility for either continued rental income or vacant possession.

Both the shop and flat benefit from newly installed solar panels and modern electric storage heating, improving energy efficiency and reducing running costs.

Offered under one freehold title, this property represents an excellent opportunity for investors, owner-occupiers, or those seeking to combine business and residential use in a prominent, high-traffic location in Darlington.

This property is offered for sale via Conditional Sale. The buyer is required to make payment of a non-refundable Reservation Fee of 2% subject to a minimum of £2,995 to secure the transaction and removes the property from the market. 

The Reservation Fee is in addition to the final negotiated selling price. Please be aware that this fee may be considered as part of the chargeable consideration and be included in the calculation for stamp duty liability and legal advice should be sought for further clarification.  

Property Details

  • Plot Sq Feet: 969 sqft
  • Council Tax Band: A
Please note, property and plot sizes displayed are for guidance purposes only and may have been derived from publicly available information over which neither the agent nor Street.co.uk have control.

Location

Properties you may like

By Sillars | Investments, Lettings & Management

Disclaimer - Property ID f7c7d88b-c68b-46bb-9a4c-5a3605b37712. The information displayed about this property comprises a property advertisement. Street.co.uk and Sillars | Investments, Lettings & Management makes no warranty as to the accuracy or completeness of the advertisement or any linked or associated information, and Street.co.uk has no control over the content. This property advertisement does not constitute property particulars. The information is provided and maintained by the advertising agent. Please contact the agent or developer directly with any questions about this listing.