Book a Viewing

To book a viewing for this property, please call Henry Adams - Selsey, on 01243 606789.

To book a viewing for this property, please call Henry Adams - Selsey, on 01243 606789.

For Sale
£425,000 Guide Price

3 Bedroom Detached Chalet, The Close, Selsey, PO20

The Close, Selsey, PO20


Henry Adams Primary Brand brand logo

Henry Adams - Selsey

Henry Adams LLP, 122 High Street, Selsey

Description

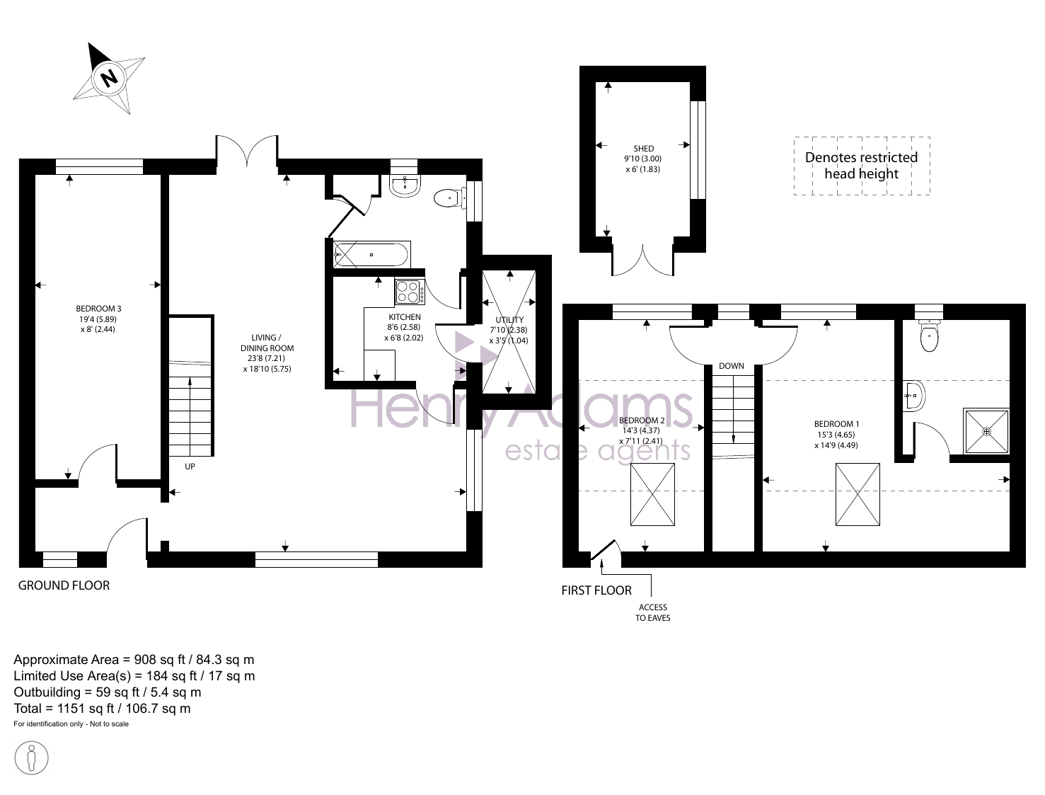
Nestled in a peaceful cul-de-sac just 200 metres from the beach, this detached chalet bungalow offers an ideal blend of comfort and convenience. The accommodation comprises three generously sized double bedrooms, with bedroom one benefiting from an en-suite shower room. The ground floor also features a family bathroom for added practicality. An L-shaped living and dining room forms the heart of the home, providing a versatile space for both relaxation and entertaining. Offered with no onward chain, this property presents an excellent opportunity for those seeking a coastal retreat or a spacious family home in a sought-after location.

The outside space is equally impressive, with a driveway laid to shingle and providing off-road parking for two cars. The rear garden, measures approximately 55ft by 40 ft and enjoys an easterly aspect. Whether you envision al fresco dining, gardening, or simply relaxing in the fresh sea air, this garden provides the perfect setting. The proximity to the beach allows for easy access to coastal walks and seaside activities, while the cul-de-sac setting ensures a quiet and safe environment. With its combination of outdoor space, practical parking, and an enviable location, this property is perfectly suited for those wishing to embrace a relaxed coastal lifestyle.
EPC Rating: D

Key Features

  • Detached chalet bungalow
  • Three double bedrooms
  • Ground floor bathroom and en-suite shower room to bedroom 1
  • L-shaped living/dining room
  • Driveway with space for 2 cars
  • Cul-de-sac location with the beach within 200m
  • 55ft x 40ft (approx.) easterly facing rear garden
  • No onward chain

Property Details

  • Property type: Chalet
  • Property style: Detached
  • Price Per Sq Foot: £459
  • Approx Sq Feet: 926 sqft
  • Plot Sq Feet: 4,887 sqft
  • Council Tax Band: C
Please note, property and plot sizes displayed are for guidance purposes only and may have been derived from publicly available information over which neither the agent nor Street.co.uk have control.

Rooms

Entrance Hall

Steps lead up to a double glazed front door opening to the entrance hall

Living/Dining Room

7.21m x 5.75m

L-Shaped and max measurements, stairs to the 1st floor, French doors to the garden and doors to the ground floor bathroom & kitchen

View Living/Dining Room Photos

Kitchen

2.58m x 2.02m

Doors to the bathroom and utility space

View Kitchen Photos

Utility space

2.38m x 1.04m

View Utility space Photos

Bedroom Three

5.89m x 2.44m

View Bedroom Three Photos

Ground floor bathroom

Bath, wash hand basin and w/c

View Ground floor bathroom Photos

Landing

Stairs from the living/dining room lead up to the 1st floor landing with doors to both bedrooms

Bedroom One

4.65m x 4.49m

L-Shaped and max measurements, door to the en-suite shower room

View Bedroom One Photos

En-Suite Shower Room

Walk in shower, w/c and wash hand basin

View En-Suite Shower Room Photos

Bedroom Two

4.37m x 2.41m

View Bedroom Two Photos

Floorplans

Outside Spaces

Garden

Mainly laid to lawn with paved seating area, wooden shed, side access to the front

View Photos

Parking Spaces

Driveway

Capacity: 2

Laid to shingle & providing off road parking for 2 cars.

Location

Properties you may like

By Henry Adams - Selsey

Disclaimer - Property ID 0e15ed0a-daa2-4773-87d4-8e688b509a6f. The information displayed about this property comprises a property advertisement. Street.co.uk and Henry Adams - Selsey makes no warranty as to the accuracy or completeness of the advertisement or any linked or associated information, and Street.co.uk has no control over the content. This property advertisement does not constitute property particulars. The information is provided and maintained by the advertising agent. Please contact the agent or developer directly with any questions about this listing.