Book a Viewing

To book a viewing for this property, please call Henry Adams - Selsey, on 01243 606789.

To book a viewing for this property, please call Henry Adams - Selsey, on 01243 606789.

For Sale
£450,000 Guide Price

4 Bedroom Detached House, Robinson Close, Selsey, PO20

Robinson Close, Selsey, PO20


Henry Adams Primary Brand brand logo

Henry Adams - Selsey

Henry Adams LLP, 122 High Street, Selsey

Description

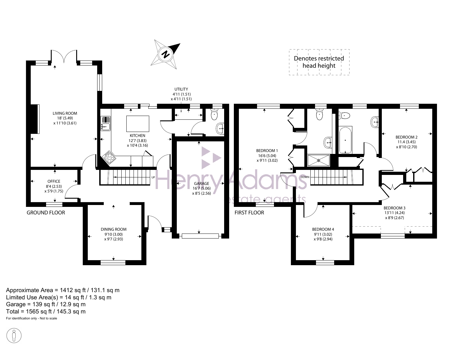
Built in the early 2000's by PYE homes to the 'Thornbury design' and nestled with in a development to the North of Selsey, this four bedroom detached house presents an opportunity for those seeking space, comfort, and potential.

Upon entering, the entrance hall provides access to all of the principal ground floor rooms. These comprise; a living room ideal for relaxation and entertainment with direct access to the garden. A dining room, perfect for hosting gatherings and sharing meals with loved ones and for those working remotely, a home office. The heart of the home lies in the kitchen breakfast room while a separate utility room ensures convenience in household chores. A cloakroom on the ground floor adds practicality to the layout, with an en-suite accompanying the main bedroom. The addition of a family bathroom caters to the needs of the household.

The driveway to the front of the home can accommodate up to two cars, has the benefit of an EV charging point and a garage. The west-facing rear garden offers opportunities for outdoor enjoyment by way of multiple seating areas along with sections of lawn.

EPC Rating: C

Key Features

  • Detached house with four bedrooms
  • Living and dining rooms
  • Home office
  • Kitchen breakfast room and separate utility room
  • Cloakroom, en-suite and family bathroom
  • Driveway for 2 cars and garage
  • Westerly facing rear garden
  • Some updating required
  • Located on a modern development to the North of Selsey

Property Details

  • Property type: House
  • Property style: Detached
  • Price Per Sq Foot: £319
  • Approx Sq Feet: 1,412 sqft
  • Plot Sq Feet: 5,393 sqft
  • Council Tax Band: E
Please note, property and plot sizes displayed are for guidance purposes only and may have been derived from publicly available information over which neither the agent nor Street.co.uk have control.

Rooms

Covered entrance

Double glazed front door opening to:

Entrance hall

Doors to all principal ground floor rooms and stairs leading up to the 1st floor

Home office

2.53m x 1.73m

View Home office Photos

Living room

5.49m x 3.60m

French doors to the garden

View Living room Photos

Dining room

3.00m x 2.94m

View Dining room Photos

Kitchen breakfast room

3.82m x 3.15m

Sliding double glazed door to the garden and door to the utility room

View Kitchen breakfast room Photos

Utility room

1.52m x 1.50m

Space for washing machine and tumble dryer, door to:

Cloakroom

Wash hand basin and w/c

View Cloakroom Photos

Bedroom one

5.05m x 3.02m

Twin built in double wardrobes, door to:

View Bedroom one Photos

En-suite shower room

Walk in double shower, wash hand basin, w/c

View En-suite shower room Photos

Bedroom two

3.45m x 2.70m

Built in double wardrobe

View Bedroom two Photos

Bedroom three

4.23m x 2.67m

Max measurements. Limited head height in part, built in double wardrobe

View Bedroom three Photos

Bedroom four

3.02m x 2.94m

View Bedroom four Photos

Family bathroom

Bath, w/c and wash hand basin

View Family bathroom Photos

Floorplans

Outside Spaces

Front Garden

Laid to lawn

Rear Garden

Patio seating area adjacent to the property with an additional paved seating area adjacent to the wooden shed. Mainly laid to lawn. Side access to the front.

View Photos

Parking Spaces

Driveway

Capacity: 2

Providing off road parking for 2 cars, EV charger and leading to:

Garage

Capacity: 1

Up & over door, light & power

Location

Properties you may like

By Henry Adams - Selsey

Disclaimer - Property ID 2be105ec-98c3-4653-8183-d32813909009. The information displayed about this property comprises a property advertisement. Street.co.uk and Henry Adams - Selsey makes no warranty as to the accuracy or completeness of the advertisement or any linked or associated information, and Street.co.uk has no control over the content. This property advertisement does not constitute property particulars. The information is provided and maintained by the advertising agent. Please contact the agent or developer directly with any questions about this listing.