Book a Viewing

Click here to pick an available date and time to view this property

Book a Viewing
For Sale
£700,000 Offers Over

Land (Residential), Long Moss Lane, Whitestake Garage, PR4

Long Moss Lane, Whitestake Garage, PR4


MovingWorks Primary Brand brand logo

MovingWorks Limited

4 Bridge Court, Little Hoole

Description

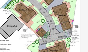
Are you looking for a prime residential land investment opportunity with planning consent for multiple dwellings? Look no further than this exceptional property boasting building plots for sale with planning in principle for five dwellings. The approved planning reference 07/2025/00378/PIP ensures the potential for significant development on this 0.77-acre plot. Additionally, the assurance of full planning previously passed under reference 07/2020/00884/FUL serves as a solid foundation for future construction endeavours.

This property presents a rare chance to create a residential enclave in a sought-after location, perfect for investors or developers seeking to capitalise on the growing housing market demand. Whether you are drawn to the prospect of building a collection of bespoke homes or wish to explore alternative development possibilities, this property offers a canvas rich with potential to shape a thriving community. Secure this opportunity today and realise your vision for a successful property venture.

Key Features

  • Building Plots For Sale
  • Planning In Principle for 5 Dwellings
  • Planning Ref: 07/2025/00378/PIP
  • Full Planning Previously Passed 07/2020/00884/FUL
  • 0.77 Acre Plot

Property Details

  • Property type: Land (Residential)
  • Property Age Bracket: 1940 - 1960
  • Council Tax Band: F
Please note, property and plot sizes displayed are for guidance purposes only and may have been derived from publicly available information over which neither the agent nor Street.co.uk have control.

Location

Properties you may like

By MovingWorks Limited

Disclaimer - Property ID 59bcc007-a50f-4138-8faf-33b16954d60d. The information displayed about this property comprises a property advertisement. Street.co.uk and MovingWorks Limited makes no warranty as to the accuracy or completeness of the advertisement or any linked or associated information, and Street.co.uk has no control over the content. This property advertisement does not constitute property particulars. The information is provided and maintained by the advertising agent. Please contact the agent or developer directly with any questions about this listing.