Book a Viewing

To book a viewing for this property, please call Stuart Rushton & Company, on 01565 757000.

To book a viewing for this property, please call Stuart Rushton & Company, on 01565 757000.

For Sale
£1,595,000

Land, Legh Road, Knutsford, WA16

Legh Road, Knutsford, WA16


Stuart Rushton and Company Primary Brand brand logo

Stuart Rushton & Company

Stuart Rushton & Co, 35 King Street

Description

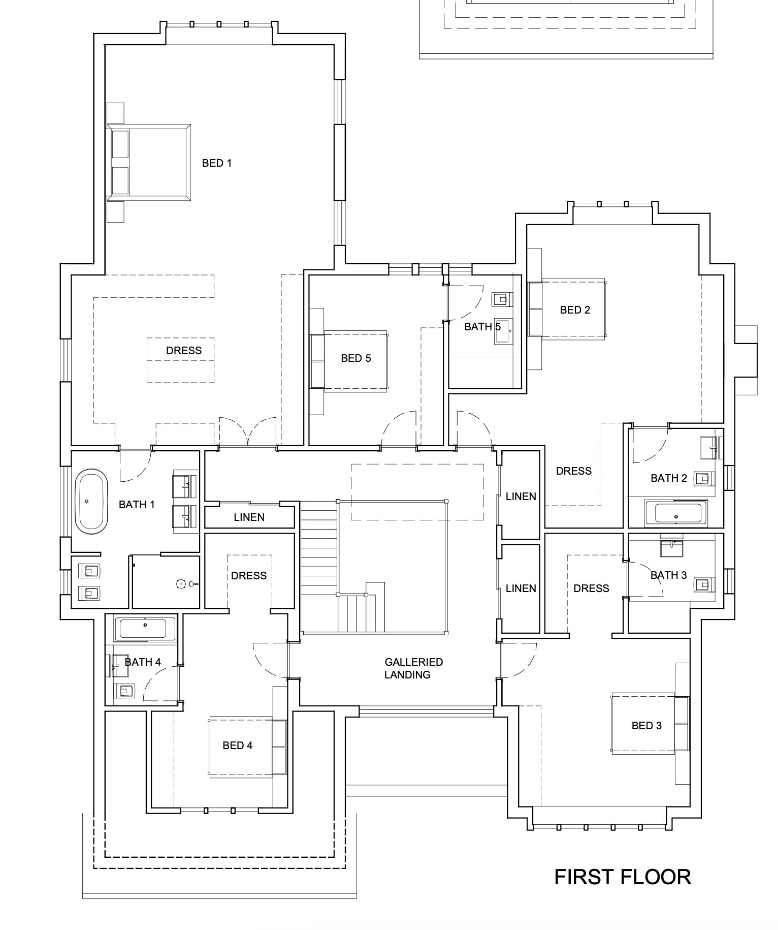
A superb half acre building plot on the towns premier road, with detailed planning consent for a large five bedroom detached house.

Situated on a wide and leafy section of Legh Road, the site is now cleared and vacant with the original property demolished, reducing the stamp duty requirement for an incoming purchaser. Consent has been obtained on the 20th January 2026 (three year consent) planning reference 25/4412/VOC for an impressive and well designed large family house, which extends to circa 5500 square feet. All plans are available here at our offices.


Key Features

  • A fantastic self build opportunity to build your own dream home in the Legh Road Conservation area
  • Wonderful building plot of nearly half an acre with full planning permission for a large detached house
  • Located on the towns foremost Road
  • Excellent planning permission for a 5500 square foot property

Property Details

  • Property type: Land
  • Price Per Sq Foot: £290
  • Approx Sq Feet: 5,500 sqft
  • Plot Sq Feet: 19,601 sqft
  • Council Tax Band: TBD
  • Property Ipack: Title plan
Please note, property and plot sizes displayed are for guidance purposes only and may have been derived from publicly available information over which neither the agent nor Street.co.uk have control.

Location

Properties you may like

By Stuart Rushton & Company

Disclaimer - Property ID 9bb9d2e0-623d-4e80-b55c-feab6ae7383f. The information displayed about this property comprises a property advertisement. Street.co.uk and Stuart Rushton & Company makes no warranty as to the accuracy or completeness of the advertisement or any linked or associated information, and Street.co.uk has no control over the content. This property advertisement does not constitute property particulars. The information is provided and maintained by the advertising agent. Please contact the agent or developer directly with any questions about this listing.