Book a Viewing

To book a viewing for this property, please call Stuart Rushton & Company, on 01565 757000.

To book a viewing for this property, please call Stuart Rushton & Company, on 01565 757000.

For Sale
£1,275,000

3 Bedroom Barn Conversion, Sudlow Lane, Tabley, WA16

Sudlow Lane, Tabley, WA16


Stuart Rushton and Company Primary Brand brand logo

Stuart Rushton & Company

Stuart Rushton & Co, 35 King Street

Description

This beautifully presented, high quality barn conversion forms part of an exclusive courtyard development, completed in 2018 by the award-winning Modern Unique Developments. Offering spacious and flexible accommodation, it occupies a peaceful semi-rural location, yet is within walking distance of Knutsford town centre.

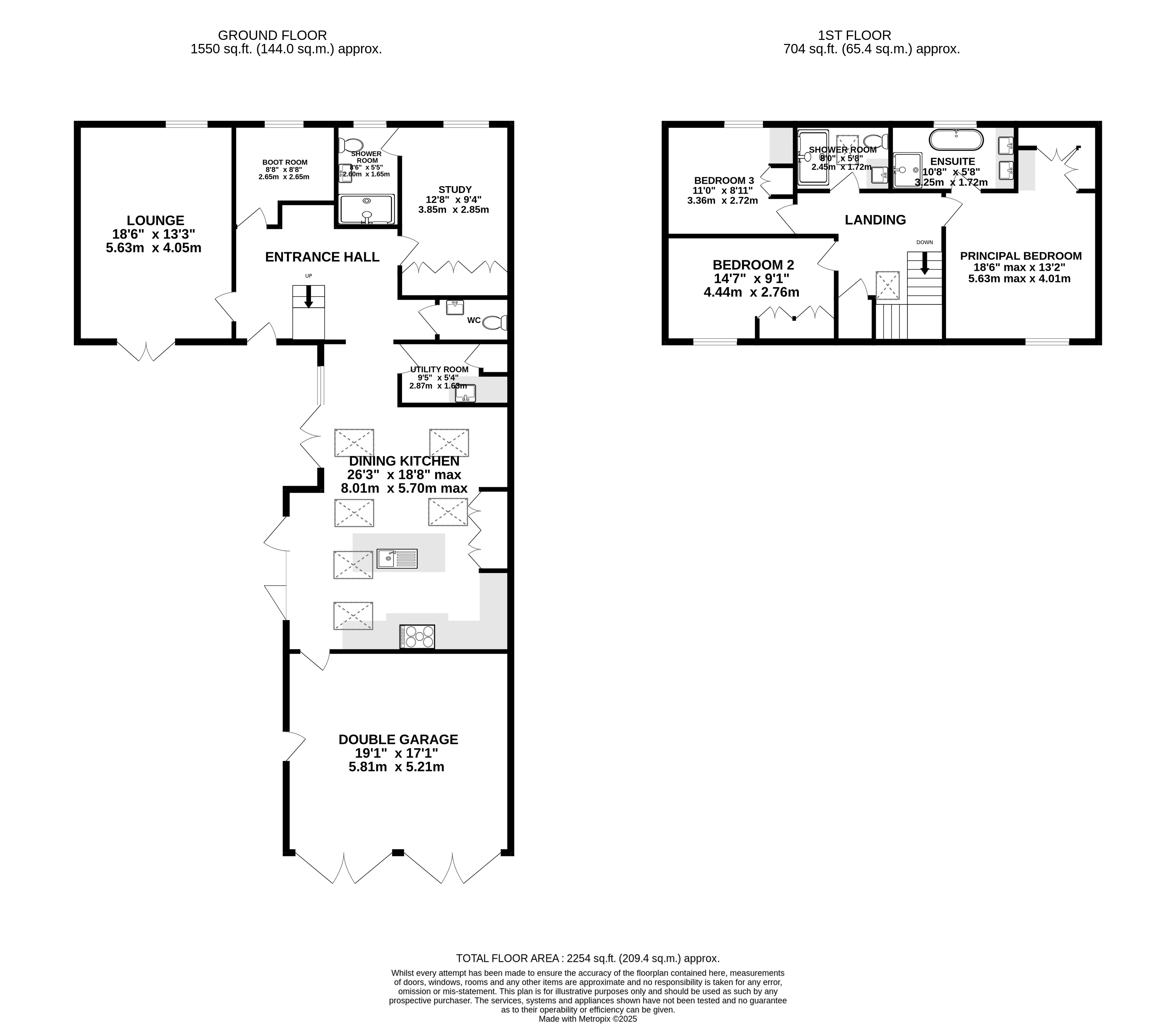
The property is entered via a welcoming entrance hall with a natural stone-flagged floor and fitted bench seating, that affords access to all principal ground floor rooms, including the impressive open-plan dining kitchen, fitted with a Sheerin of Knutsford kitchen and featuring a full height vaulted and beamed ceiling. A well-proportioned living room features bespoke cabinetry, oak flooring and a log-burning stove, while a study provides versatile living space with fitted furniture and an adjoining shower room. Completing the ground floor accommodation are a WC, useful boot room and separate utility room.

Upstairs, vaulted ceilings and exposed timber beams create a light and airy atmosphere. There are three generously sized bedrooms, all with bespoke fitted wardrobes. The principal bedroom benefits from a designated dressing area and a beautifully appointed en-suite bathroom, which includes a walk-in shower, a large bath and double wash basins. The two remaining bedrooms share a stylish family shower room.

Externally, the property is accessed via a communal gated driveway which provides access to private parking and large double garage with electric car charger. The entrance courtyard garden is attractively landscaped with raised beds, water feature and covered seating area with outdoor fire and electric heating.

This exceptional home combines modern luxury with the charm of a barn conversion, offering the perfect blend of style and comfort.


EPC Rating: C

Key Features

  • High quality barn conversion on the edge of the town centre
  • Large, open-plan dining kitchen with vaulted beamed ceiling
  • Dual aspect lounge with wood burning stove
  • Useful boot room
  • Principal bedroom suite with fitted dressing area and large en-suite bathroom
  • All bedrooms with quality fitted wardrobes
  • Large, secure garaging
  • Low maintenance courtyard style garden
  • Heating and hot water run off an efficient air source heat pump

Property Details

  • Property type: Barn Conversion
  • Price Per Sq Foot: £566
  • Approx Sq Feet: 2,254 sqft
  • Plot Sq Feet: 3,735 sqft
  • Property Age Bracket: 2010s
  • Council Tax Band: G
  • Property Ipack: Title Plan
Please note, property and plot sizes displayed are for guidance purposes only and may have been derived from publicly available information over which neither the agent nor Street.co.uk have control.

Floorplans

Outside Spaces

Garden

Pleasant, low maintenance courtyard garden with covered seating area with electric heating, raised flower beds, water feature and outdoor fire.

Parking Spaces

Garage

Capacity: 2

Location

Properties you may like

By Stuart Rushton & Company

Disclaimer - Property ID 9bb9d351-210f-43f9-9c0d-63d0c4213c6a. The information displayed about this property comprises a property advertisement. Street.co.uk and Stuart Rushton & Company makes no warranty as to the accuracy or completeness of the advertisement or any linked or associated information, and Street.co.uk has no control over the content. This property advertisement does not constitute property particulars. The information is provided and maintained by the advertising agent. Please contact the agent or developer directly with any questions about this listing.