Book a Viewing

To book a viewing for this property, please call Sacha Scott Estate & Letting Agents, on 01737 887 674.

To book a viewing for this property, please call Sacha Scott Estate & Letting Agents, on 01737 887 674.

For Sale
£925,000 Guide Price

3 Bedroom Detached House, Kingfisher Close, Banstead, SM7

Kingfisher Close, Banstead, SM7


Sacha Scott Estate & Letting Agents Primary Brand brand logo

Sacha Scott Estate & Letting Agents

Sacha Scott Estate Agents, 9 Nork Way

Description

New Detached Home - Private Road - Kingfisher Close - Due for Completion late 2025/early 2026 - Generous Corner/End Plot - 3 Bedrooms

Set within a small development of just nine homes, this latest addition added by Denton (previous houses built 2021) is tucked away at the end of a quiet private cul-de-sac off Warren Road in the sought-after village of Nork. Built to Denton’s exceptional high quality, this brand new home is one to see if you are looking for a generous property in a quiet yet convenient location.

The ground floor offers a modern kitchen and separate study to the front, while across the rear of the property a stunning open-plan family/dining space overlooks the garden. A practical guest WC completes the downstairs.

Upstairs, the home provides three well-proportioned bedrooms. The primary bedroom benefits from fitted wardrobes and a private en-suite shower room and bedroom 2 and 3 are served by the family bathroom, with bedroom 2 also benefiting from fitted wardrobes.

Located on a corner plot offering front, rear and side gardens, this is a generous home with ample parking. Early viewing is highly recommended.

Important Note:  Images Supplied are Artists Impressions or Show Home Photos from similar Denton Homes.

Location & Lifestyle

  • Nork Village offers a fantastic mix of restaurants, cafés, grocery stores, barbers, beauty salons, a post office, and a pilates studio.

  • Fir Tree Parade offers further everyday conveniences, while Asda superstore is just 5 minutes by car.

  • Nork Park, with its green expanse, café, and community centre, is within a 10-minute walk – ideal for leisure, dog walks, and family outings.

  • Banstead Village High Street, with its wider array of shops, restaurants, and boutiques, is also close by.

Transport

  • Rail: Banstead Station (~0.5 miles) offers direct services to London Victoria. Nearby Epsom Downs, Epsom, Kingswood and Tattenham Corner stations provide further commuter options.

  • Bus: Local routes within walking distance include the 318 and 166, connecting Banstead with Epsom, Sutton, Croydon and Reigate.

  • Road: Convenient access to the A217 and M25 (Junctions 8/9) for London, Gatwick, Heathrow and the wider South East.

Schools
The area is well served for schools, including:

  • Warren Mead Infant & Junior Schools (Nursery to age 11)

  • The Beacon School (ages 11+)

  • Local independents: Aberdour School, Banstead Preparatory School, Epsom College

Please note: School catchment areas vary annually. Buyers are advised to verify eligibility with Surrey County Council and the relevant schools directly.

Tenure: Freehold

Council Tax: To be confirmed

EPC: Expected B rating (final certification upon completion)

Service Charge: This property is located on a private road and incurs service charges of approx. £784.44 per annum for communal landscaping etc.

Key Property Information

This new home also comes complete with Denton Homes’ premium specification, including:

  • Solar Panels

  • Underfloor (wet) heating to the ground floor

  • Radiators to the first floor

  • High ceilings throughout

  • Smoke & carbon alarms (wired)

  • Burglar alarm

  • External lighting

  • Siemens appliances & quartz worktops

  • Fitted wardrobes to bedrooms 1 & 2

  • CAT 6 cabling throughout

  • Loft ladder & lighting

Disclaimer

These property details are prepared in good faith from information supplied by the seller and are believed to be correct. However, they are provided for guidance only and do not form part of any contract. Neither the agent nor the seller accepts responsibility for any errors, omissions or misstatements. Buyers must satisfy themselves by inspection, survey, and independent legal advice before proceeding with a purchase.

About Us

Here to deliver a personal service that surpasses others, our family business is built on a solid foundation of outstanding customer service. We exist to make the moving process stress free and smooth for all parties involved. A vast majority of our business comes via referrals and recommendations from happy sellers, buyers, tenants and landlords and as such we are confident that you will love our service as much as others before you have. We love what we do, and it shows. Your property is safe with us, we are a member of The Property Ombudsman Scheme and the Propertymark Client Money Protection Scheme. Our landlord and tenant fees can be found on sachascott.com.


Key Features

  • Generous Corner Plot
  • Detached
  • 3 Bedrooms
  • 2 Bathrooms
  • Exceptional Denton Home
  • Quiet Private Cul-de-Sac
  • Huge Lounge/Diner
  • Study
  • Separate Kitchen
  • Short Walk to Shops & Trains

Property Details

  • Property type: House
  • Property style: Detached
  • Price Per Sq Foot: £605
  • Approx Sq Feet: 1,528 sqft
  • Property Age Bracket: New Build
  • Council Tax Band: TBD
Please note, property and plot sizes displayed are for guidance purposes only and may have been derived from publicly available information over which neither the agent nor Street.co.uk have control.

Rooms

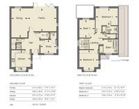
Family

5.41m x 4.30m

View Family Photos

Dining

3.37m x 5.43m

Kitchen

3.61m x 3.73m

View Kitchen Photos

Primary Bedroom

4.18m x 3.21m

View Primary Bedroom Photos

Bedroom 2

3.61m x 3.77m

View Bedroom 2 Photos

Bedroom 3

2.91m x 3.31m

View Bedroom 3 Photos

Floorplans

Outside Spaces

Garden

The plot benefits from a private rear garden and parking and land to the front and side of the property. Measurements to be confirmed.

Parking Spaces

Driveway

Capacity: 4

The plot benefits from a large driveway with space for up to 4 cars.

Location

Properties you may like

By Sacha Scott Estate & Letting Agents

Disclaimer - Property ID a7149d4b-2536-4b6d-8e04-3a2008d246f3. The information displayed about this property comprises a property advertisement. Street.co.uk and Sacha Scott Estate & Letting Agents makes no warranty as to the accuracy or completeness of the advertisement or any linked or associated information, and Street.co.uk has no control over the content. This property advertisement does not constitute property particulars. The information is provided and maintained by the advertising agent. Please contact the agent or developer directly with any questions about this listing.