Book a Viewing

To book a viewing for this property, please call Nested Highland, on 01463389144.

To book a viewing for this property, please call Nested Highland, on 01463389144.

For Sale
£299,000 Offers Over

3 Bedroom Semi Detached House, West Argyle Street, Ullapool, IV26

West Argyle Street, Ullapool, IV26


Nested Highland Primary Brand brand logo

Nested Highland

Fora, 9 Dallington Street, London

Description

This beautifully renovated and extended three-bedroom semi-detached traditional cottage presents a very rare opportunity to acquire a charming home in the heart of Ullapool, one of the West Coast’s most sought-after villages. The property has been thoughtfully modernised and fully insulated, offering a contemporary lifestyle while retaining much of the original character and architectural features of the period. Enjoying stunning views over Loch Broom and the mountains beyond, the home is ideally situated for easy access to all local amenities, including shops, cafes, and schools. The accommodation comprises a welcoming lounge, a high-quality modern fitted dining kitchen (perfect for both family meals and entertaining), three well-proportioned bedrooms, and a stylish shower room. The property benefits from modern electric heating, multi-fuel stove and double-glazing throughout, ensuring comfort and energy efficiency in all seasons. The 2 timber sheds provide ample space for bike storage and garden implements, with further potential for development, allowing the new owners to potentially tailor the property to their own needs. The generously-sized and well-maintained landscaped garden is complemented by the large paved patio for outdoor entertaining. This exceptional home combines the best of traditional charm and modern convenience in a picturesque coastal location, making it an ideal choice for families, professionals, or anyone seeking a tranquil retreat with excellent connectivity and community amenities. Early viewing is highly recommended to appreciate the quality and setting of this unique traditional cottage.


EPC Rating: F

Virtual Tour


Key Features

  • Beautifully renovated & extended 3-bed traditional cottage with views to Loch Broom and mountains beyond
  • Fully insulated to provide a contemporary lifestyle whilst keeping the original character of the property
  • Quality modern fitted dining kitchen
  • Accommodation consists of lounge, dining kitchen, 3 bedroom and shower-room
  • Centrally located for access to all local facilities
  • Coastal location in popular West Coast village of Ullapool
  • Gorgeous landscaped garden with large paved patio
  • Opportunity for further development
  • Modern thermostatically controlled electric heating, multi-fuel stove and double-glazing throughout
  • 2 timber sheds for bike storage and garden implements.

Property Details

  • Property type: House
  • Property style: Semi Detached
  • Price Per Sq Foot: £319
  • Approx Sq Feet: 936 sqft
  • Property Age Bracket: Victorian (1830 - 1901)
  • Council Tax Band: D
Please note, property and plot sizes displayed are for guidance purposes only and may have been derived from publicly available information over which neither the agent nor Street.co.uk have control.

Rooms

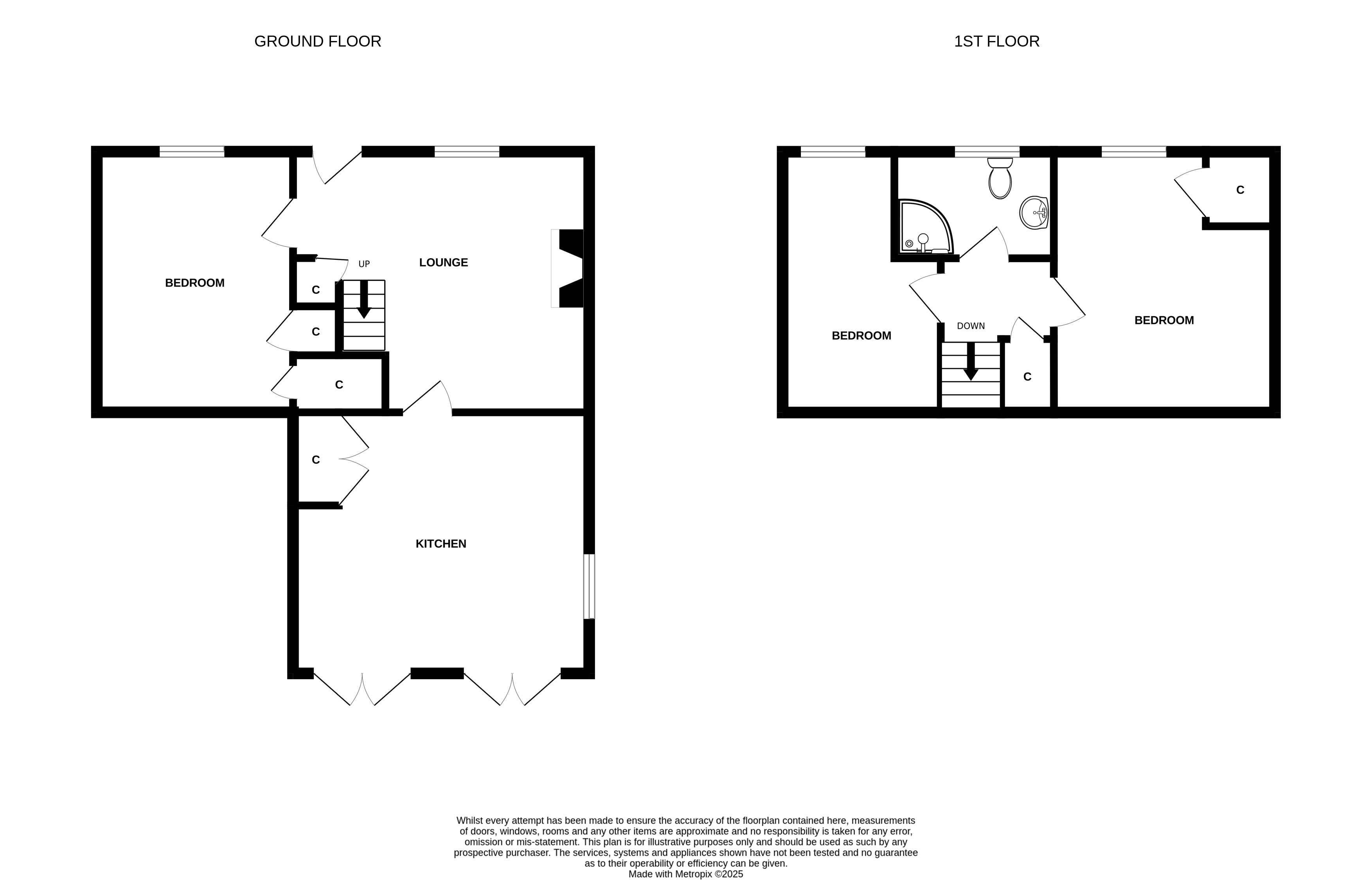
Lounge

4.89m x 4.04m

This spacious lounge has a Clearview multi-fuel stove in a recessed hearth making this room, cosy and comfortable for relaxation. The quality oak-finished wooden floor sits on top of thick insulation meaning the modern, thermostatically-controlled Rointe wall heaters are rarely required

View Lounge Photos

Dining Kitchen

5.17m x 4.04m

The large dining kitchen is designed to ensure efficient meal preparation with fitted electric oven & induction hob, ample fitted units, drawers & cupboards. Two sets of double patio doors make the beautifully landscaped garden with its paved patio a natural outdoor extension. The free-standing white goods may be available by separate negotiation.

View Dining Kitchen Photos

Bedroom

2.64m x 4.04m

Lower bedroom currently being used as a Home Office & Fitness Room. Lots of storage provided by fitted wardrobe and under-stair cupboard. Hard wearing oak-finished wooden floor-covering sits on thick underfloor insulation. Modern Rointe thermostatically controlled electric wall heater.

View Bedroom Photos

Bedroom

3.16m x 4.16m

Upper floor double bedroom with slightly coombed ceilings. Views to Loch Broom and hills beyond. Modern Rointe thermostatically controlled electric wall heater.

View Bedroom Photos

Bedroom

2.33m x 4.16m

Upper double bedroom with coombed ceiling and eaves storage. Views to Loch Broom and hills beyond. Modern Rointe thermostatically controlled electric wall heater.

View Bedroom Photos

Shower-room

1.61m x 1.91m

Shower room with gravity fed drench shower. Fully-tiled walls, electric towel rail and luxury electric underfloor heating. White basin and WC.

View Shower-room Photos

Floorplans

Outside Spaces

Garden

Large, beautifully landscaped garden with large paved patio complemented by lawn and mature shrub borders with views to Beinn Dearg. The two timber sheds provide useful storage for garden implements and bikes etc.

View Photos

Parking Spaces

On street

Capacity: N/A

Location

This lovely property is located in the popular west coast village of Ullapool. Local amenities include a great variety of shops, supermarket, hotels, restaurants as well as the main ferry terminal for sailings to Stornoway and The Isle of Lewis. The primary school and High School are located within easy walking distance. The excellent 9-hole village golf course is very popular with visitors and locals alike. The Scottish Highlands provide fabulous opportunities for outdoor activities with the ruggedness of the North-West Highlands, often referred to as the last great wilderness in Europe, right on your doorstep. Inverness (58 miles away) provides a wide range of retail parks along with excellent cultural, educational, entertainment and medical facilities. Inverness is also well connected by road, rail and air to other UK & overseas destinations.

Properties you may like

By Nested Highland

Disclaimer - Property ID ffd86929-7ed3-4e66-8ddb-5db2e8a40f17. The information displayed about this property comprises a property advertisement. Street.co.uk and Nested Highland makes no warranty as to the accuracy or completeness of the advertisement or any linked or associated information, and Street.co.uk has no control over the content. This property advertisement does not constitute property particulars. The information is provided and maintained by the advertising agent. Please contact the agent or developer directly with any questions about this listing.